Apartament de vanzare Zona Badea Car?an

98.000 €

Central, Constanţa

Nr. camere:
2
Suprafață utilă:
40 mp
Etaj:
4 / 4
An construcție:
1985
Nr. niveluri:
4

Descriere apartament

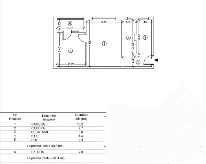
Apartament de vanzare Zona Badea Car?an Localizare excelenta: La 10 minute de mers pe jos de City Park Mall, Parcul Tabacarie ?i Maritimo zone perfecte pentru plimbari, relaxare ?i timp de calitate Sta?ie de autobuz la 5 minute de mers pe jos ?i taxi la scara blocului ?coala ?i gradini?a in apropiere Acces rapid catre Mamaia (10 minute cu ma?ina) Detalii apartament: Bloc din beton Etaj 4 din 4 Uscator comun al blocului, chiar langa apartament Complet renovat ?i modernizat: Centrala termica + calorifere (2020) Aer condi?ionat Instala?ie electrica ?i sanitara refacute integral (2022) Parchet din lemn restaurat (?lefuit + lacuit), gresie ?i faian?a schimbate, pere?i proaspat varui?i, u?a de intrare noua Apartament izolat termic la exterior + tamplarie termopan Mobilier realizat pe comanda ?i electrocasnice moderne: plita de sticla, cuptor electric, hota, frigider cu finisaj din sticla, ma?ina de spalat vase, ma?ina de spalat rufe cu uscator Conexiuni TV ?i internet trase prin perete, pentru un aspect curat ?i ordonat Avantaje suplimentare: Se vinde complet mobilat ?i utilat gata de mutare Acte la zi: cadastru ?i intabulare Suprafa?a utila: 38,6 mp Suprafa?a totala: 41,4 mp Pre?: 98.000 negociabil Direct proprietar: ID anun? : 1765902919
Citește mai mult Citește mai puțin
Confort 2 Semidecomandat Zonă de litoral

Detalii apartament

ID anunț: 2980975 Actualizat în: 06 Martie 2026
Nr. camere: 2
Suprafață utilă: 40 mp
Suprafață utilă totală: 40 mp
Compartimentare: Semidecomandat
Confort: 2
Etaj: Etaj 4 / 4
Nr. băi: 1
An construcție: 1985
Regim înălțime: P+4E

Istoric preț

Facilități

Utilități
Apă Internet Climă Gaze

Proprietăți similare

Apartament cu 2 camere decomandat în Central
95.000 €
Constanța, Central
2 camere
50 mp
Etaj 3
Apartament cu 3 camere semidecomandat în Central
105.000 €
Constanța, Central
3 camere
64 mp
Etaj 2 / 4
Apartament cu 2 camere semidecomandat în Central
99.000 €
Constanța, Central
2 camere
48 mp
Etaj 1
Apartament cu 2 camere decomandat în Central
99.000 €
Constanța, Central
2 camere
60 mp
Etaj 8 / 8
Apartament cu 2 camere semidecomandat în Central
94.500 €
Constanța, Central
2 camere
46 mp
Etaj 5
Apartament cu 2 camere în Central
89.900 €
Constanța, Central
2 camere
52 mp
Etaj 9
Apartament cu 3 camere în Central
100.000 €
Constanța, Central
3 camere
69 mp
Etaj 5
Apartament cu 2 camere semidecomandat, mobilat în Central
100.000 €
Constanța, Central
2 camere
47,52 mp
Parter
Apartament cu 2 camere în Central
95.000 €
Constanța, Central
2 camere
55 mp
Etaj 2

Abonează-te la newsletter să fii primul care primește cele mai noi recomandări de proprietăți și sfaturi de la experți.