PROPRIETAR. Apartament 4 camere, Palazu Mare

198.000 €

Palazu Mare, Constanţa

Nr. camere:
4
Suprafață utilă:
82 mp
Etaj:
1 / 3
An construcție:
2019
Nr. niveluri:
3

Descriere apartament

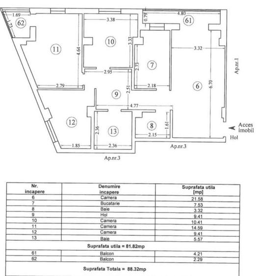
Apartament de 82 mp in Palazu Mare, Constanta, situat la etajul 1 al unui bloc cu 3 etaje. Acesta dispune de 4 camere si o bucatarie separata. Iti ofera un balcon si toate dotarile necesare: mobilier, masina de spalat, frigider, cuptor si televizor. Incalzirea este pe gaz, iar apartamentul beneficiaza de aer conditionat pentru confortul tau.Loc de parcare inclus in pret!!!Locatia este excelenta, aproape de:Magazine si supermarketuri: Carrefour, Mega Image, ProfiUnitati de invatamant: Gradinita Kidoera, Sectia de pregatire marinareascaTransport public: Statia Barbu Catargiu la doar 183 mServicii medicale: Spitalul Clinic de PneumoftiziologieRestaurante: Papa Ricardo, Burger KingCentre sportive: Baza nautica RATCMall-uri: TOM, VIVO!Daca te intereseaza aceasta proprietate, nu ezita sa ne contactezi pentru detalii suplimentare!
Citește mai mult Citește mai puțin
Zonă de litoral

Detalii apartament

ID anunț: 876462 Actualizat în: 02 Aprilie 2026
Nr. camere: 4
Suprafață utilă: 82 mp
Suprafață utilă totală: 82 mp
Etaj: Etaj 1 / 3
An construcție: 2019
Regim înălțime: P+3E

Istoric preț

Puncte de interes

Mijloace transport
transport
Statia Carrefour, autobuzele 100C, 43C
Mijloace transport aprox. 807 m
transport
Carrefour [43C 100C]
Mijloace transport aprox. 866 m
transport
Sere[3 43C 100C]
Mijloace transport aprox. 1120 m
transport
Sere[3 43C 100C]
Mijloace transport aprox. 1228 m
Școală
education
Baza nautica UMC
Învățământ aprox. 1404 m
education
Scoala Nr. 14
Învățământ aprox. 1445 m
education
Şcoala cu Clasele I-VIII Nr.14
Învățământ aprox. 1448 m
education
Gradinita Nr.39
Învățământ aprox. 1449 m
Recreere
shopping
Carrefour
Supermarket/Mall aprox. 657 m
shopping
Centrul Comercial Tom
Supermarket/Mall aprox. 708 m
parks
Parc
Recreere aprox. 1462 m
restaurants
Taverna Sarbului
Restaurante aprox. 1603 m

Proprietăți similare

Apartament cu 2 camere decomandat, mobilat în Palazu Mare
185.000 € + TVA
Constanța, Palazu Mare
2 camere
68 mp
Etaj 1 / 8
Apartament cu 3 camere în Palazu Mare
197.000 €
Constanța, Palazu Mare
3 camere
121 mp
Etaj 4
Apartament cu 3 camere decomandat în Palazu Mare
185.130 €
Constanța, Palazu Mare
3 camere
96,04 mp
Etaj 1
Apartament cu 2 camere decomandat, mobilat în Capitol
210.000 €
Constanța, Capitol
2 camere
78,35 mp
Etaj 2
Apartament cu 3 camere decomandat, mobilat în Capitol
185.000 €
Constanța, Capitol
3 camere
81,1 mp
Etaj 4
Apartament cu 3 camere decomandat în Faleza Nord
180.000 €
Constanța, Faleza Nord
3 camere
60 mp
Etaj 7
Apartament cu 3 camere decomandat, mobilat în Faleza Nord
189.999 €
Constanța, Faleza Nord
3 camere
78 mp
Etaj 4
Apartament cu 3 camere decomandat, mobilat în Central
190.000 €
Constanța, Central
3 camere
90 mp
Parter
Apartament cu 4 camere decomandat, mobilat în Tomis Nord
199.900 €
Constanța, Tomis Nord
4 camere
86 mp
Etaj 1 / 9

Abonează-te la newsletter să fii primul care primește cele mai noi recomandări de proprietăți și sfaturi de la experți.