EXCLUSIVITATE Parter decomandat Soveja , Zona Inel 1

110.000 €

Inel I, Constanţa

Nr. camere:
2
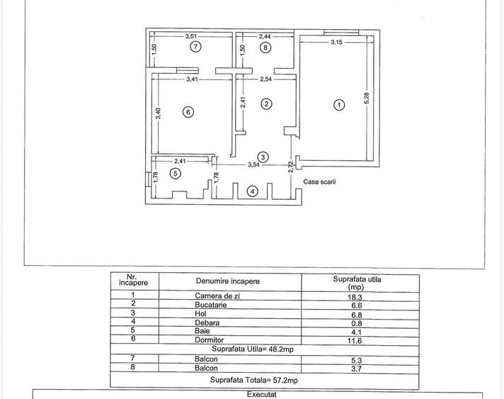
Suprafață utilă:
49 mp
Etaj:
Parter / 4
An construcție:
1985
Nr. niveluri:
4

Descriere apartament

Agentia Acord Imobiliar va propune in vederea achizitionarii, un apartament cu 2 camere, decomandat si 2 balcoane in suprafata de 9 mp , la parterul unui bloc P+4, in zona Inel 1, mobilat , utilat ,cu centrala pe gaz si aer conditionat. Pentru mai multe detalii, va rugam sa ne contactati pe oricare dintre numerele afisate in oferta, mesaj, whatsapp sau email. Oferta prezentata in EXCLUSIVITATE de catre Agentia Imobiliara ACORD IMOBILIAR. Confort: 1 Tip imobil: Bloc de apartamente Numar Bai: 1 Posibilitate parcare: Nu
Citește mai mult Citește mai puțin
Decomandat Mobilat Aer condiționat Centrală proprie Bine întreținut (Bună) Zonă de litoral

Detalii apartament

Actualizat în: 23 Aprilie 2026 ID anunț: 1233409
Nr. camere: 2
Suprafață utilă: 49 mp
Suprafață utilă totală: 49 mp
Compartimentare: Decomandat
Etaj: Parter / 4
An construcție: 1985
Regim înălțime: P+4E

Istoric preț

Facilități

Sistem încălzire
Centrală proprie
Internet
Cablu
Climatizare
Aer condiționat
Bucătărie
Mobilată Utilată
Mobilat
Mobilat
Stare interior
Stare bună
Amenajare străzi
Iluminat stradal Mijloace de transport în comun Asfaltate

Puncte de interes

Mijloace transport
transport
Statia Poporului; Linia 51
Mijloace transport aprox. 121 m
transport
Statia Rapsodia; Linia 44
Mijloace transport aprox. 206 m
transport
Statia Ion Roata; Linia 51
Mijloace transport aprox. 212 m
transport
Poporului [51]
Mijloace transport aprox. 216 m
Școală
education
Liceul cu program sportiv Nicolae Rotaru
Învățământ aprox. 292 m
education
Liceul cu Program Sportiv - CSS
Învățământ aprox. 325 m
education
Colegiul Naţional de Arte Regina Maria
Învățământ aprox. 475 m
education
Liceul de Arte Constanta
Învățământ aprox. 485 m
Recreere
parks
The Land of Dwarves (Ţara Piticilor Casa de Cultură) (en)
Recreere aprox. 184 m
restaurants
Rapsodia Restaurant (en)
Restaurante aprox. 313 m
shopping
Mega Image
Supermarket/Mall aprox. 510 m
shopping
Carrefour Market
Supermarket/Mall aprox. 520 m

Proprietăți similare

Apartament cu 3 camere decomandat, mobilat în Inel I
115.000 €
Constanța, Inel I
3 camere
54,75 mp
Etaj 1 / 4
Apartament cu 3 camere decomandat, mobilat în Inel I
99.000 €
Constanța, Inel I
3 camere
67 mp
Etaj 4 / 4
Apartament cu 3 camere decomandat, mobilat în Inel I
103.000 €
Constanța, Inel I
3 camere
61,25 mp
Etaj 4
Apartament cu 2 camere decomandat în Inel I
120.000 €
Constanța, Inel I
2 camere
61,61 mp
Etaj 4
Apartament cu 3 camere în Inel I
99.000 €
Constanța, Inel I
3 camere
67 mp
Etaj 4
Apartament cu 2 camere decomandat, mobilat în Inel I
115.000 €
Constanța, Inel I
2 camere
52 mp
Etaj 2
Apartament cu 3 camere decomandat în Inel I
110.000 €
Constanța, Inel I
3 camere
60 mp
Etaj 3
Apartament cu 3 camere decomandat, mobilat în Inel I
115.000 €
Constanța, Inel I
3 camere
58 mp
Etaj 1
Apartament cu 3 camere decomandat în Inel I
119.000 €
Constanța, Inel I
3 camere
72 mp
Parter

Abonează-te la newsletter să fii primul care primește cele mai noi recomandări de proprietăți și sfaturi de la experți.