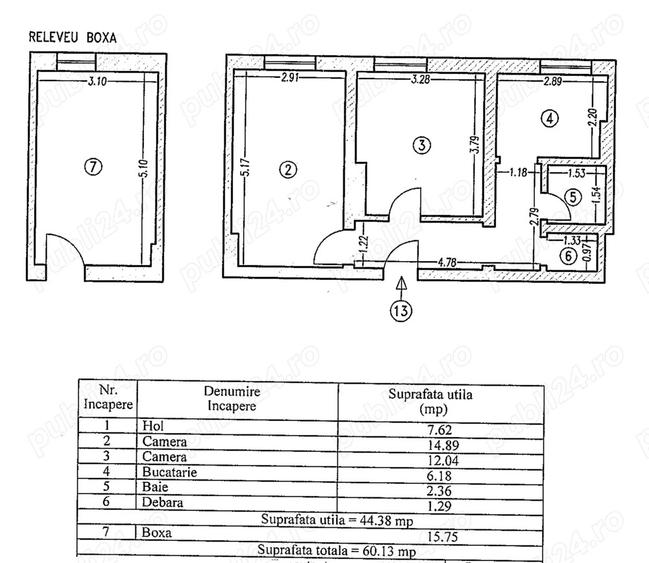
Academia de MARINA 2 Camere Decomandate 44,38m Liber Incadrat Centrala pe GAZE

79.900 €

Est, Constanţa

Nr. camere:
2
Suprafață utilă:
45 mp
Etaj:
1 / 2
An construcție:
1965
Nr. niveluri:
2

Descriere apartament

Birou de Intermediere si Consultanta Imobiliara Va propunem spre Vanzare un Apartament de 2 Camere Decomandate confort 1, avand o Suprafata Utila de 44,38m , in zona Academiei de MARINA, in imediata vecinatate a Scolii Generale nr.23, situat la Etajul 1, intr-un bloc de 2 Etaje, din caramida. Imobilul este Foarte Luminos, Curat, nu prezinta Imbunatatiri, incadrat, pozitionat EST, cu Centrala Termica pe Gaze. In plus apartamentul beneficiaza de o Boxa extrem de spatioasa la subsol in suprafata de 15,75m . Apartamentul necesita Renovare. Pret negociabil! Cadastru, Intabulare, Certificat Energetic, PAD C: 82806 ID anun? : 1771322474
Citește mai mult Citește mai puțin
Confort 1 Decomandat 1 Parcare Zonă de litoral

Detalii apartament

ID anunț: 3439136 Actualizat în: 17 Februarie 2026
Nr. camere: 2
Suprafață utilă: 45 mp
Suprafață utilă totală: 45 mp
Compartimentare: Decomandat
Confort: 1
Etaj: Etaj 1 / 2
Nr. băi: 1
An construcție: 1965
Regim înălțime: P+2E
Nr. locuri parcare: 1

Istoric preț

Facilități

Utilități
Apă Gaze Internet
Facilități
Boxă

Proprietăți similare

Apartament cu 2 camere decomandat în Tomis Nord
85.000 €
Constanța, Tomis Nord
2 camere
49 mp
Etaj 5 / 6
Apartament cu 3 camere nedecomandat în Tomis Nord
74.000 €
Constanța, Tomis Nord
3 camere
40 mp
Etaj 4 / 4
Apartament cu 2 camere decomandat în Dacia
85.000 €
Constanța, Dacia
2 camere
51 mp
Etaj 4
Apartament cu 2 camere decomandat, mobilat în Tomis Plus
76.500 € + TVA
Constanța, Tomis Plus
2 camere
44,5 mp
Etaj 5
Apartament cu 2 camere în Abator
75.000 €
Constanța, Abator
2 camere
52 mp
Etaj 2 / 10
Apartament cu 3 camere semidecomandat în Groapa
85.000 €
Constanța, Groapa
3 camere
48 mp
Etaj 1 / 4
Apartament cu 2 camere semidecomandat, mobilat în Groapa
74.900 €
Constanța, Groapa
2 camere
33,26 mp
Etaj 2 / 4
Apartament cu 2 camere semidecomandat, mobilat în Abator
75.000 €
Constanța, Abator
2 camere
48 mp
Etaj 4
Apartament cu 2 camere decomandat în Tomis Nord
85.000 €
Constanța, Tomis Nord
2 camere
55 mp
Etaj 4

Abonează-te la newsletter să fii primul care primește cele mai noi recomandări de proprietăți și sfaturi de la experți.