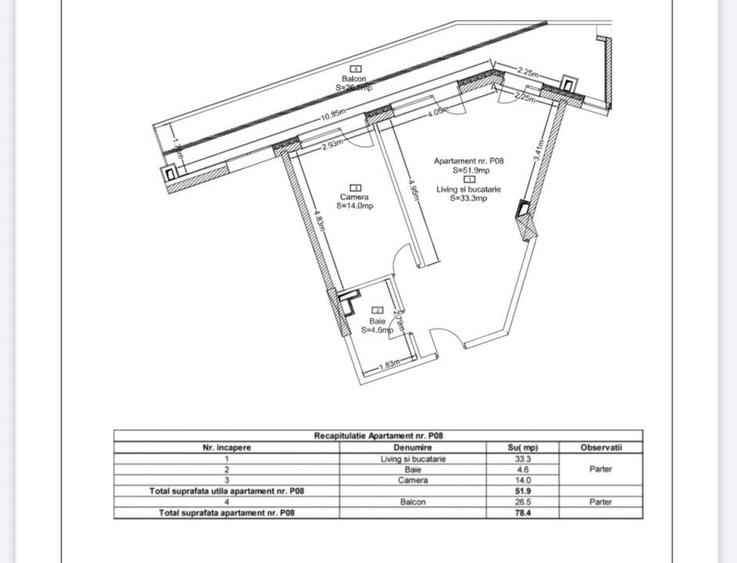
Apartament de vanzare, cu 2 camere, 51,9,mp, zona Ansamblu Rezidential, Zorilor

153.064 €

Zorilor, Cluj-Napoca

Nr. camere:
2
Suprafață utilă:
51,9 mp
Etaj:
Parter / 15
An construcție:
2021
Nr. niveluri:
15

Descriere apartament

Blitz va propune spre vanzare un apartament spatios, situat intr-un ansamblu rezidential nou din cartierul Zorilor, una dintre cele mai cautate zone ale orasului. Suprafata utila generoasa Apartamentul este pozitionat la parter si este compartimentat eficient, ideal pentru o familie sau pentru investitie. Acesta este semifinisat, oferindu-va libertatea de a-l amenaja dupa gustul propriu. Compartimentare: • Living cu bucatarie open space – zona de zi luminoasa si aerisita • 1 dormitor confortabil • 1 bai • 1 balcone – perfect pentru relaxare Stadiu de predare: • Semifinisat: pereti tencuiti si gletuiti, sapa turnata, centrala termica proprie, instalatii trase pe pozitii, usi la intrare montate Ansamblu modern: Imobilul face parte dintr-un complex rezidential modern, cu acces securizat, spatii verzi amenajate si locuri de parcare disponibile. Locatie excelenta Zona Zorilor ofera acces rapid catre centrul orasului, spitale, universitati, magazine si mijloace de transport in comun. Cod oferta / ID BLITZ: P146593
Citește mai mult Citește mai puțin
Decomandat Nemobilat Centrală proprie

Detalii apartament

ID anunț: 277753 Actualizat în: 19 Martie 2026
Nr. camere: 2
Suprafață utilă: 51,9 mp
Suprafață utilă totală: 51,9 mp
Compartimentare: Decomandat
Etaj: Parter / 15
Nr. băi: 1
An construcție: 2021
Regim înălțime: P+15E

Istoric preț

Facilități

Utilități
Curent Apă
Sistem încălzire
Centrală proprie
Mobilat
Nemobilat
Ușă intrare
Metal PVC
Ferestre cu geam termopan
PVC
Amenajare străzi
Asfaltate

Puncte de interes

Mijloace transport
transport
statia gh. dima, linii 35. 46, 46b, 43, 50
Mijloace transport aprox. 85 m
transport
Statia Post Zorilor, Linia 46, 50
Mijloace transport aprox. 88 m
transport
Zorilor
Mijloace transport aprox. 91 m
transport
Gheorghe Dima
Mijloace transport aprox. 102 m
Școală
education
Gradinita Liceului Waldorf
Învățământ aprox. 234 m
education
Liceul Waldorf
Învățământ aprox. 265 m
education
Helen
Învățământ aprox. 304 m
education
Scoala Generala nr. 10 / Şcoala Radu Stanca
Învățământ aprox. 474 m
Recreere
parks
Parc
Recreere aprox. 148 m
shopping
Profi
Supermarket/Mall aprox. 284 m
shopping
Billa
Supermarket/Mall aprox. 324 m
restaurants
Pizzeria Azzuro
Restaurante aprox. 327 m

Proprietăți similare

Apartament cu 2 camere decomandat în Zorilor
153.000 €
Cluj-Napoca, Zorilor
2 camere
48 mp
Etaj 2 / 2
Apartament cu 2 camere decomandat, mobilat în Zorilor
165.000 €
Cluj-Napoca, Zorilor
2 camere
62 mp
Parter / 10
Apartament cu 2 camere decomandat, mobilat în Zorilor
155.000 €
Cluj-Napoca, Zorilor
2 camere
57 mp
Etaj 4 / 4
Apartament cu 2 camere semidecomandat în Zorilor
153.064 €
Cluj-Napoca, Zorilor
2 camere
52 mp
Parter
Apartament cu 2 camere semidecomandat în Zorilor
159.900 €
Cluj-Napoca, Zorilor
2 camere
52 mp
Parter / 2
Apartament cu 2 camere semidecomandat, mobilat în Zorilor
162.500 €
Cluj-Napoca, Zorilor
2 camere
54 mp
Etaj 4 / 4
Apartament cu 2 camere decomandat, mobilat în Zorilor
158.000 €
Cluj-Napoca, Zorilor
2 camere
47 mp
Etaj 4
Apartament cu 2 camere semidecomandat, mobilat în Zorilor
139.000 €
Cluj-Napoca, Zorilor
2 camere
45 mp
Etaj 6 / 7
Apartament cu 2 camere decomandat, mobilat în Zorilor
153.500 €
Cluj-Napoca, Zorilor
2 camere
47 mp
Etaj 4

Abonează-te la newsletter să fii primul care primește cele mai noi recomandări de proprietăți și sfaturi de la experți.