Apartament cu 2 camere, zona Pod Ira

120.100 €

Mărăşti, Cluj-Napoca

Nr. camere:
2
Suprafață utilă:
60,05 mp
Etaj:
1 / 3
Nr. niveluri:
3

Descriere apartament

Blitz ofera spre vanzare apartament intr-un ansamblu rezidential situat in zona Traian Vuia din Cluj-Napoca, cu acces privat securizat prin bariera. Apartamentele disponibile se vand la stadiul de semifinisat, oferindu-le viitorilor proprietari posibilitatea de a-si personaliza locuintele conform preferintelor. Complexul modern, amplasat intr-o zona linistita si bine conectata la principalele artere ale orasului, promite un mediu sigur si confortabil, ideal pentru familii si tineri profesionisti. Pretul afisat nu include TVA. Pretul unei parcari subterane este de 8.000 EUR + TVA. Cod oferta / ID BLITZ: P130287
Citește mai mult Citește mai puțin
Semidecomandat Nemobilat

Detalii apartament

ID anunț: 68729 Actualizat în: 17 Martie 2026
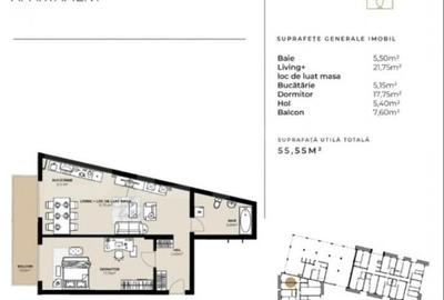
Nr. camere: 2
Suprafață utilă: 60,05 mp
Suprafață utilă totală: 60,05 mp
Compartimentare: Semidecomandat
Etaj: Etaj 1 / 3
Nr. băi: 1
Regim înălțime: P+3E

Istoric preț

Facilități

Mobilat
Nemobilat

Puncte de interes

Mijloace transport
transport
Statia Scoala Someseni
Mijloace transport aprox. 337 m
transport
Camin Someseni
Mijloace transport aprox. 375 m
transport
Statia Scoala 1, Linia 8
Mijloace transport aprox. 385 m
transport
Frumoasa
Mijloace transport aprox. 549 m
Școală
education
Scoala Generala nr.12 (en)
Învățământ aprox. 288 m
education
Scoala cu clasele I-VIII Traian Darjan
Învățământ aprox. 301 m
education
Grădinita Aşchiuţă str. 4
Învățământ aprox. 864 m
education
Şcoala Traian Dârjan
Învățământ aprox. 1043 m
Recreere
parks
Parc
Recreere aprox. 275 m
restaurants
Cantina Primariei din Someseni
Restaurante aprox. 508 m
shopping
Selgros
Supermarket/Mall aprox. 1128 m
shopping
Lidl
Supermarket/Mall aprox. 1706 m

Proprietăți similare

Apartament cu 2 camere în Mărăști
120.000 €
Cluj-Napoca, Mărăști
2 camere
4.600 mp
Apartament cu 2 camere semidecomandat în Mărăști
115.600 €
Cluj-Napoca, Mărăști
2 camere
45,84 mp
Etaj 3
Apartament cu 2 camere semidecomandat, mobilat în Mărăști
115.000 €
Cluj-Napoca, Mărăști
2 camere
33 mp
Parter
Apartament cu 2 camere semidecomandat în Mărăști
115.000 €
Cluj-Napoca, Mărăști
2 camere
55 mp
Apartament cu 2 camere în Mărăști
110.000 €
Cluj-Napoca, Mărăști
2 camere
52 mp
Etaj 1
Apartament cu 2 camere semidecomandat în Mărăști
130.180 €
Cluj-Napoca, Mărăști
2 camere
56 mp
Etaj 3
Apartament cu 2 camere semidecomandat, mobilat în Mărăști
120.000 €
Cluj-Napoca, Mărăști
2 camere
43 mp
Etaj 3
Apartament cu 2 camere semidecomandat, mobilat în Mărăști
119.000 €
Cluj-Napoca, Mărăști
2 camere
41,75 mp
2010
Apartament cu 2 camere semidecomandat în Mărăști
131.300 €
Cluj-Napoca, Mărăști
2 camere
52,33 mp
Etaj 1

Abonează-te la newsletter să fii primul care primește cele mai noi recomandări de proprietăți și sfaturi de la experți.