Apartament 3 Camere | 64 mp | Curte 60 mp | Parcare | Terra Floresti

115.000 €

Floreşti, Cluj-Napoca

Nr. camere:
3
Suprafață utilă:
64,23 mp
Etaj:
Parter

Descriere apartament

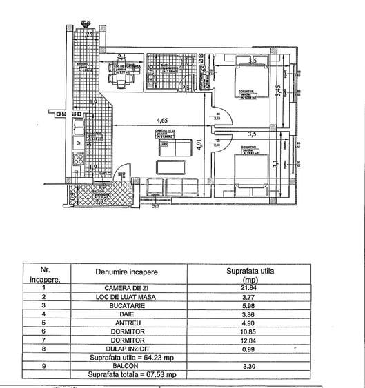
ID: OFC 2849490Oferta in Reprezentare Exclusiva cu Comision 0% pentru oferim spre vanzare un apartament de 3 camere semidecomandat, situat in zona Terra, mai exact pe strada Sesul de Sus.Proprietatea este ideala pentru o familie care isi doreste confort, intimitate, si acces facil catre toate punctele de interes din zona.Locuinta are o suprafata utila de 64,23 mp si este compartimentata astfel: - 1 living spatios impreuna cu bucataria si cu iesire in curte - 2 dormitoare - 1 baie - 1 hol de acces - 1 balcon de 3,30 mpCurtea are o suprafata de aproximativ 60 mp, este amenajata, contine si un foisor, spatiu verde, fiind ideala pentru relaxare sau momente petrecute impreuna cu familia si prietenii.Apartamentul se vinde partial mobilat, utilat si cu un loc de parcare exterior, inclus in pretul afisat.Confortul termic este asigurat de centrala termica proprie si izolatia exterioara, iar la nivelul finisajelor regasim: parchet, geamuri termopan, gresie, faianta, aer conditionat, usa de metal la intare, vopsea lavabila, etc.Proprietatea este amplasta in imediata vecinatate a multor puncte majore de interes: statie de autobuz, gradinita, supermarket, diferite magazine, farmacie, cabinete medicale, restaurante, etc.Pentru mai multe detalii sau programarea unei vizionari, nu ezitati sa ne contactati!ID: OFC 2849490 https:// /apartament-3-camere-de-vanzare-terra-floresti-cp2849490/
Citește mai mult Citește mai puțin
Semidecomandat 1 Parcare

Detalii apartament

ID anunț: 3188734 Actualizat în: 02 Aprilie 2026
Nr. camere: 3
Suprafață utilă: 64,23 mp
Suprafață utilă totală: 64,23 mp
Compartimentare: Semidecomandat
Etaj: Parter
Nr. băi: 1
Nr. locuri parcare: 1

Istoric preț

Proprietăți similare

Apartament cu 3 camere în Florești
116.000 €
Cluj-Napoca, Florești
3 camere
60 mp
Etaj 3 / 3
Apartament cu 3 camere semidecomandat în Florești
119.900 €
Cluj-Napoca, Florești
3 camere
62 mp
Parter / 4
Apartament cu 2 camere semidecomandat în Florești
117.500 €
Cluj-Napoca, Florești
2 camere
62 mp
Parter
Apartament cu 2 camere semidecomandat în Florești
123.000 €
Cluj-Napoca, Florești
2 camere
58 mp
Etaj 2
Apartament cu 3 camere semidecomandat în Florești
112.000 €
Cluj-Napoca, Florești
3 camere
64 mp
Etaj 2
Apartament cu 3 camere semidecomandat în Florești
124.000 €
Cluj-Napoca, Florești
3 camere
68 mp
Etaj 2
Apartament cu 2 camere semidecomandat în Florești
116.900 €
Cluj-Napoca, Florești
2 camere
45 mp
Etaj 7
Apartament cu 3 camere semidecomandat în Florești
124.000 €
Cluj-Napoca, Florești
3 camere
55 mp
Etaj 1 / 3
Apartament cu 2 camere decomandat, mobilat în Florești
111.000 €
Cluj-Napoca, Florești
2 camere
53 mp
Etaj 1 / 2

Abonează-te la newsletter să fii primul care primește cele mai noi recomandări de proprietăți și sfaturi de la experți.