Penthouse cu terasă și rooftop panoramic 360° | Eugen Ionesco | View Cluj | PF

240.000 €

Europa, Cluj-Napoca

Nr. camere:
3
Suprafață utilă:
61 mp
Etaj:
3 / 3
An construcție:
2024
Nr. niveluri:
3

Descriere apartament

Penthouse de vânzare – strada Luminii, Cluj. Proprietar persoană fizică. Semifinisat. Acest penthouse situat pe strada Luminii oferă un echilibru greu de găsit în Cluj: o zonă liniștită și aerisită, cu acces rapid către centru, aflat la aproximativ 10 minute. Poziționarea ridicată oferă o priveliște deschisă peste oraș, iar terasa rooftop panoramică — de dimensiunea apartamentului — transformă locuința într-un spațiu aparte. Terasa de 65 mp, aflată în continuarea directă a zonei de locuit, funcționează ca o extensie naturală a apartamentului. Este pregătită cu racord de apă pentru instalarea unui jacuzzi, iar dimensiunea ei permite amenajarea unei pergole din sticlă în viitor, transformând zona într-un spațiu de relaxare utilizabil pe tot parcursul anului. 
 La nivelul superior se află terasa rooftop, cu o suprafață comparabilă cu cea a apartamentului. Priveliștea deschisă peste Cluj oferă un cadru potrivit pentru o zonă de lounge, dining exterior sau pur și simplu pentru timp petrecut în aer liber. 
 Caracteristici tehnice:
 Apartamentul este echipat cu soluții moderne pentru confort și eficiență: -încălzire în pardoseală -centrală proprie -tâmplărie Rehau cu geam termopan Suprafață & compartimentare:
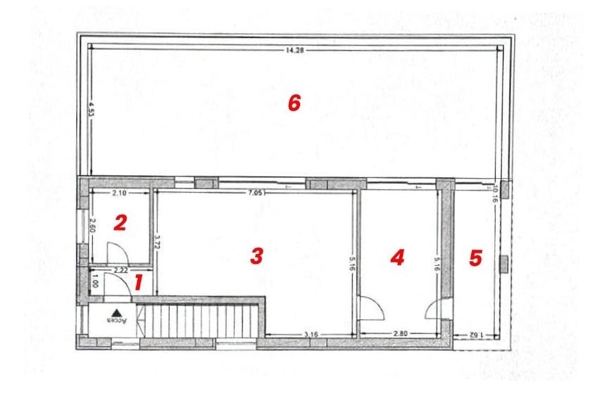
 -Hol (1) – 2.2 mp -Baie (2) – 5.5 mp -Living + Bucătărie open space (3) – 30.9 mp -Dormitor (4) – 14.5 mp -Dressing (5) – 8.36 mp Suprafață utilă apartament: 61.46 mp

 Spații exterioare: -Terasă (6) – 65.44 mp -Terasă rooftop panoramică (7) – 145.09 mp

 Parcare: proprietatea include un loc de parcare acoperit. Este un apartament potrivit pentru cine caută un spațiu luminos, bine poziționat, cu terase generoase și vedere deschisă asupra orașului.
Citește mai mult Citește mai puțin
Decomandat Nemobilat Centrală proprie

Detalii apartament

ID anunț: 3917027 Actualizat în: 21 Martie 2026
Nr. camere: 3
Suprafață utilă: 61 mp
Suprafață utilă totală: 61 mp
Compartimentare: Decomandat
Etaj: Etaj 3 / 3
An construcție: 2024
Regim înălțime: P+3E

Istoric preț

Facilități

Utilități
Apă Gaze Canalizare
Sistem încălzire
Centrală proprie
Mobilat
Nemobilat

Puncte de interes

Mijloace transport
transport
Luminii
Mijloace transport aprox. 160 m
transport
E. Ionesco
Mijloace transport aprox. 191 m
transport
L.Matis
Mijloace transport aprox. 430 m
transport
N. Steinhardt
Mijloace transport aprox. 446 m
Școală
education
Gradinita Liceului Waldorf
Învățământ aprox. 1241 m
education
Liceul Waldorf
Învățământ aprox. 1262 m
education
Helen
Învățământ aprox. 1444 m
education
Liceul de Informatica Tiberiu Popoviciu
Învățământ aprox. 1751 m
Recreere
parks
Teren sportiv
Recreere aprox. 558 m
shopping
Baumax
Supermarket/Mall aprox. 900 m
restaurants
Apartament 1
Restaurante aprox. 1265 m
shopping
Lidl
Supermarket/Mall aprox. 1265 m

Proprietăți similare

Apartament cu 3 camere semidecomandat, mobilat în Europa
258.000 €
Cluj-Napoca, Europa
3 camere
77 mp
Etaj 2 / 3
Apartament cu 3 camere semidecomandat, mobilat în Europa
255.000 €
Cluj-Napoca, Europa
3 camere
77 mp
Etaj 2 / 3
Apartament cu 3 camere semidecomandat, mobilat în Europa
237.000 €
Cluj-Napoca, Europa
3 camere
61 mp
Etaj 1
Apartament cu 3 camere semidecomandat, mobilat în Europa
245.000 €
Cluj-Napoca, Europa
3 camere
79 mp
Etaj 4
Apartament cu 2 camere semidecomandat, mobilat în Europa
229.000 €
Cluj-Napoca, Europa
2 camere
60 mp
Etaj 3
Apartament cu 3 camere semidecomandat, mobilat în Europa
239.000 €
Cluj-Napoca, Europa
3 camere
72 mp
Etaj 1
Apartament cu 3 camere semidecomandat, mobilat în Europa
258.000 €
Cluj-Napoca, Europa
3 camere
77 mp
Etaj 2 / 3
Apartament cu 2 camere decomandat, mobilat în Europa
218.000 €
Cluj-Napoca, Europa
2 camere
66 mp
Etaj 2 / 7
Apartament cu 3 camere semidecomandat, mobilat în Europa
258.000 €
Cluj-Napoca, Europa
3 camere
77 mp
Etaj 2

Abonează-te la newsletter să fii primul care primește cele mai noi recomandări de proprietăți și sfaturi de la experți.