Apartament 3 camere 73mp semifinisat Piata Abator

250.000 € + TVA

Central, Cluj-Napoca

Nr. camere:
3
Suprafață utilă:
73 mp
Etaj:
1 / 6
An construcție:
2024
Nr. niveluri:
6

Descriere apartament

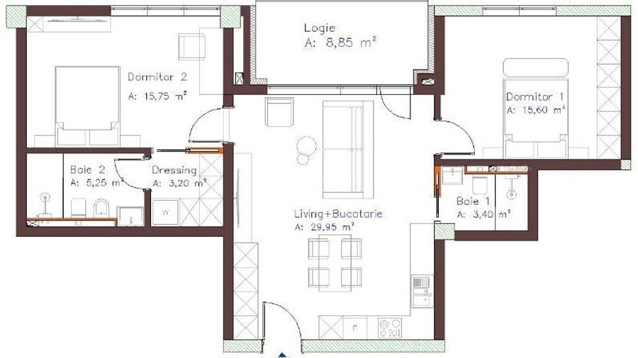
Descoperă un apartament modern, spațios și excelent compartimentat, ideal pentru o familie sau pentru cei care își doresc confort și funcționalitate într-o locuință premium. Proprietatea oferă suprafețe generoase, lumină naturală și o organizare inteligentă a spațiilor. ✨ Caracteristici principale - Living + Bucătărie open-space – 29,95 m² Un spațiu amplu și luminos, perfect pentru relaxare și socializare. - Dormitor 1 – 15,60 m² Ideal ca dormitor matrimonial. - Dormitor 2 – 15,75 m² Potrivit pentru copil, birou sau cameră de oaspeți. - Logie – 8,85 m² Spațiu exterior generos, perfect pentru relaxare. - Baie principală – 6,25 m² Spațioasă și ușor de amenajat modern. - Baie secundară – 3,40 m² Practică și utilă pentru familie sau oaspeți. - Dressing – 3,20 m² Ideal pentru depozitare eficientă. 🚗 Parcare la subsol 20.000 euro+TVA Apartamentul beneficiază de loc de parcare la subsol, un avantaj important pentru confort și siguranță, mai ales în zonele aglomerate. 🏢 Avantaje suplimentare - Compartimentare practică și echilibrată - Spații mari, ușor de mobilat - Ideal pentru familii sau investiție - Posibilitate de personalizare
Citește mai mult Citește mai puțin

Detalii apartament

ID anunț: 4126791 Actualizat în: 18 Martie 2026
Nr. camere: 3
Suprafață utilă: 73 mp
Suprafață utilă totală: 73 mp
Etaj: Etaj 1 / 6
Nr. băi: 2
An construcție: 2024
Regim înălțime: P+6E

Istoric preț

Facilități

Utilități
Curent Apă Canalizare Gaze Cablu
Internet
Cablu
Ușă intrare
Metal
Izolații termice
Exterior
Amenajare străzi
Iluminat stradal Mijloace de transport în comun Asfaltate

Puncte de interes

Mijloace transport
transport
Statia Paris, Linia 23,41,50,52, 1
Mijloace transport aprox. 302 m
transport
Paris
Mijloace transport aprox. 331 m
transport
Barbu Patriciu
Mijloace transport aprox. 331 m
transport
Grupul Scolar CFR Est
Mijloace transport aprox. 357 m
Școală
education
Grăd.Căsuţa poveştilor1
Învățământ aprox. 131 m
education
Universitatea Crestina "Dimitrie Cantemir" Facultatea de Drept Cluj Napoca (en)
Învățământ aprox. 451 m
education
Liceul Victor Babeş
Învățământ aprox. 472 m
education
Grăd.Bambi
Învățământ aprox. 497 m
Recreere
parks
Parcul Feroviarilor
Recreere aprox. 106 m
restaurants
Restaurant Pensiune Junior
Restaurante aprox. 358 m
shopping
Oncos
Supermarket/Mall aprox. 654 m
shopping
Magazin alimentar
Supermarket/Mall aprox. 966 m

Proprietăți similare

Apartament cu 3 camere semidecomandat în Central
250.000 €
Cluj-Napoca, Central
3 camere
73 mp
Etaj 1
Apartament cu 2 camere decomandat, mobilat în Central
230.000 €
Cluj-Napoca, Central
2 camere
63 mp
Etaj 2
Apartament cu 2 camere decomandat, mobilat în Central
275.000 €
Cluj-Napoca, Central
2 camere
55 mp
Etaj 3
Apartament cu 2 camere decomandat în Central
250.000 €
Cluj-Napoca, Central
2 camere
59 mp
Etaj 8 / 10
Apartament cu 2 camere semidecomandat, mobilat în Central
268.990 €
Cluj-Napoca, Central
2 camere
54 mp
2024
Apartament cu 2 camere decomandat, mobilat în Central
270.000 €
Cluj-Napoca, Central
2 camere
59 mp
Etaj 6
Apartament cu 2 camere semidecomandat, mobilat în Central
265.000 €
Cluj-Napoca, Central
2 camere
53 mp
Etaj 5
Apartament cu 2 camere decomandat în Central
269.000 €
Cluj-Napoca, Central
2 camere
70 mp
Etaj 2
Apartament cu 2 camere decomandat, mobilat în Central
270.000 €
Cluj-Napoca, Central
2 camere
59 mp
Etaj 6

Abonează-te la newsletter să fii primul care primește cele mai noi recomandări de proprietăți și sfaturi de la experți.