Proprietar PF vand apartament 3 camere zona Parcul Feroviarilor Cluj-Napoca

259.000 €

Central, Cluj-Napoca

Nr. camere:
3
Suprafață utilă:
62 mp
Etaj:
4 / 5
An construcție:
2019
Nr. niveluri:
5

Descriere apartament

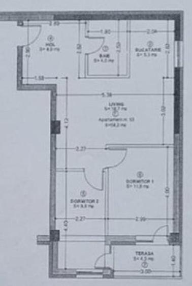
Unic proprietar vand apartament cu 3 camere, situat in zona centrala a orasului, in vecinatatea Parcului Feroviarilor si Armatura, dar si in apropierea celor mai noi ansambluri imobiliare: Maurer, Oxygen si Rivus Mall. Apartamentul este situat la etajul 4 dintr-un imobil cu 5 etaje, are orientare Sud-Vest si este compartimentat astfel: - 2 dormitoare - living - bucatarie - baie - hol spatios - terasa (cu iesire din ambele dormitoare) Apartamentul este finisat si se vinde partial (sau complet) mobilat. De asemenea, acesta se vinde impreuna cu o parcare subterana si o boxa amenajata de 2.6 mp. Pretul parcarii este de 20.000 Eur; iar pretul boxei este 8.000 Eur. *Acestea nu sunt incluse in pretul afisat. La subsol exista locuri amenajate pentru parcarea bicicletelor, iar in fata ansamblului sunt deja trasate piste de biciclete care fac legatura cu cele doua parcuri din apropiere. Apartamentul face parte dintr-un imobil nou construit si finializat in anul 2019. Blocul este din caramida, izolat termic; dispune de lift si o curte interioara inchisa, cu gazon si loc de joaca pentru copii. Blocul se afla la cateva minute de mers pe jos si in imediata apropiere a: - Parcului Feroviarilor (1-2 min); Parcul Armatura (5 min), Piata Mihai Viteazul (10 min), Parcul Central (15 min), Teatrul National (15 min) - scolilor si liceelor din centru (Lic Balcescu, Lic Racovita, Lic Avram Iancu, Lic de Muzica): max 5-10 min de mers pe jos. Este ideal pentru familii cu copii mici si elevi - sediilor unor multinationale mari: NTT Data, Nagarro, Bosch, The Office - statiilor de autobuz (2 min): P-ta Abator; P-ta M. Viteazul Pentru mai multe detalii si vizionare, nu ezitati sa ma contactati la nr de telefon afisat!
Citește mai mult Citește mai puțin
Semidecomandat

Detalii apartament

ID anunț: 2517375 Actualizat în: 08 Februarie 2026
Nr. camere: 3
Suprafață utilă: 62 mp
Suprafață utilă totală: 62 mp
Compartimentare: Semidecomandat
Etaj: Etaj 4 / 5
An construcție: 2019
Regim înălțime: P+5E

Istoric preț

Puncte de interes

Mijloace transport
transport
Anton Pann
Mijloace transport aprox. 63 m
transport
Piata Abator
Mijloace transport aprox. 114 m
transport
Statia Piata Abator, Linia 23,36,41,50,52, 1
Mijloace transport aprox. 120 m
transport
Statia Traian, Liniile: 9, 3, 4, 22, 26, 27
Mijloace transport aprox. 322 m
Școală
education
Liceul de Muzica Sigismund Toduta
Învățământ aprox. 281 m
education
Grăd.Bambi
Învățământ aprox. 337 m
education
Şcoala Specială Centrul de Resurse şi Documentare Privind Educaţia Incluzivă/Integrată
Învățământ aprox. 382 m
education
Liceul de Muzică Sigismund Toduţă
Învățământ aprox. 434 m
Recreere
restaurants
Greek specialities (en)
Restaurante aprox. 50 m
parks
Parc
Recreere aprox. 297 m
shopping
Unicarm
Supermarket/Mall aprox. 631 m
shopping
Oncos
Supermarket/Mall aprox. 673 m

Proprietăți similare

Apartament cu 3 camere semidecomandat, mobilat în Central
270.000 €
Cluj-Napoca, Central
3 camere
90 mp
Parter
Apartament cu 2 camere semidecomandat, mobilat în Central
268.990 €
Cluj-Napoca, Central
2 camere
54 mp
2024
Apartament cu 2 camere decomandat în Central
275.000 €
Cluj-Napoca, Central
2 camere
65 mp
Parter
Apartament cu 2 camere decomandat, mobilat în Central
250.000 €
Cluj-Napoca, Central
2 camere
46 mp
Etaj 2
Apartament cu 2 camere semidecomandat în Central
280.000 € + TVA
Cluj-Napoca, Central
2 camere
56 mp
Etaj 2
Apartament cu 2 camere semidecomandat, mobilat în Central
240.000 €
Cluj-Napoca, Central
2 camere
75 mp
Etaj 1
Apartament cu 2 camere decomandat în Central
250.000 €
Cluj-Napoca, Central
2 camere
59 mp
Etaj 1
Apartament cu 3 camere decomandat în Central
260.000 €
Cluj-Napoca, Central
3 camere
69 mp
Parter
Apartament cu 3 camere semidecomandat în Central
245.000 €
Cluj-Napoca, Central
3 camere
78 mp
Etaj 1

Abonează-te la newsletter să fii primul care primește cele mai noi recomandări de proprietăți și sfaturi de la experți.