Apartament 4 camere in bloc tip vila Spiru Haret / Ciochinescu

129.700 €

Exterior Vest, Buzău

Nr. camere:
4
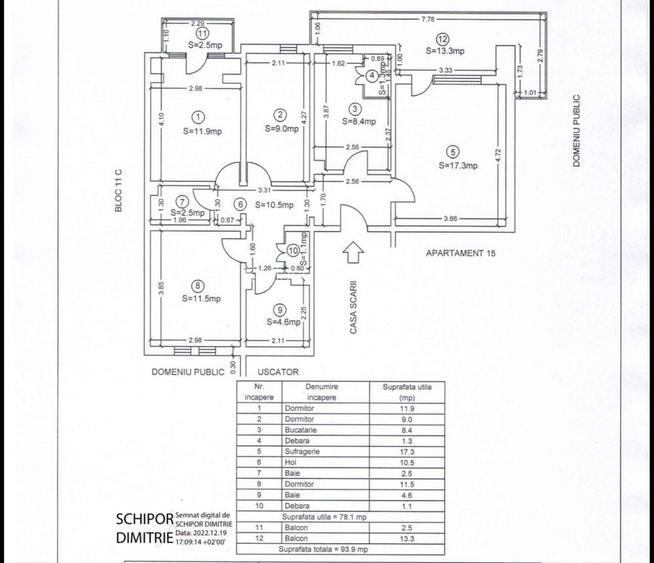
Suprafață utilă:
93 mp
Etaj:
4 / 4
Nr. niveluri:
4

Descriere apartament

Vand apartament 4 camere, Ciochinescu x Spiru Haret, bloc tip vila, et 4/4 nemobilat, termpoane, centrala de apartament, aer conditionat. apartamentul necesita renovare! Vis a vis de Liceul Pedagogic, Scoala, gradinita/cresa. Situatie juridica clara.
Citește mai mult Citește mai puțin
Confort 1 Decomandat

Detalii apartament

ID anunț: 2712627 Actualizat în: 16 Aprilie 2026
Nr. camere: 4
Suprafață utilă: 93 mp
Suprafață utilă totală: 93 mp
Compartimentare: Decomandat
Confort: 1
Etaj: Etaj 4 / 4
Nr. băi: 2
Regim înălțime: P+4E

Istoric preț

Puncte de interes

Mijloace transport
transport
Hasdeu
Mijloace transport aprox. 460 m
transport
Bulevardul Unirii
Mijloace transport aprox. 482 m
transport
Statia RAM Transbuz
Mijloace transport aprox. 570 m
transport
Gara Buzau
Mijloace transport aprox. 578 m
Școală
education
Colegiul Agricol Doctor Constantin Angelescu
Învățământ aprox. 226 m
education
Colegiul Agricol Doctor Constantin Angelescu
Învățământ aprox. 257 m
education
Colegiul Agricol Doctor Constantin Angelescu
Învățământ aprox. 261 m
education
Scoala Generala nr. 8
Învățământ aprox. 301 m
Recreere
parks
Teren sportiv
Recreere aprox. 270 m
restaurants
Rustic Bar
Restaurante aprox. 289 m
shopping
Universal Le Big Piata
Supermarket/Mall aprox. 420 m
shopping
Bian Market (caragiale)
Supermarket/Mall aprox. 481 m

Proprietăți similare

Apartament cu 3 camere semidecomandat în Exterior Vest
122.000 €
Buzău, Exterior Vest
3 camere
58 mp
Etaj 2
Apartament cu 2 camere în Orizont
133.000 €
Buzău, Orizont
2 camere
64 mp
Etaj 3 / 6
Apartament cu 4 camere decomandat, mobilat în Dorobanți 2
117.000 €
Buzău, Dorobanți 2
4 camere
90 mp
Etaj 2 / 4
Apartament cu 4 camere decomandat în Contactoare
130.000 €
Buzău, Contactoare
4 camere
150 mp
Etaj 3 / 3
Apartament cu 2 camere semidecomandat în Micro 14
138.000 €
Buzău, Micro 14
2 camere
40 mp
Etaj 3 / 4
Apartament cu 4 camere decomandat, mobilat în Unirii Sud
132.000 €
Buzău, Unirii Sud
4 camere
86 mp
Etaj 1 / 4
Apartament cu 4 camere decomandat în Ultracentral
135.000 €
Buzău, Ultracentral
4 camere
95 mp
Etaj 4
Apartament cu 4 camere decomandat în Dorobanți
117.000 €
Buzău, Dorobanți
4 camere
100 mp
Etaj 2 / 4
Apartament cu 3 camere decomandat, mobilat în Unirii Nord
138.950 €
Buzău, Unirii Nord
3 camere
66,05 mp
Etaj 1 / 10

Abonează-te la newsletter să fii primul care primește cele mai noi recomandări de proprietăți și sfaturi de la experți.