Apartament 3 camere, Schei-Piata Unirii, suprafata 86 mp, parter la casa.

175.000 €

Schei, Braşov

Nr. camere:
3
Suprafață utilă:
86 mp
Etaj:
Parter / 1
An construcție:
1927
Nr. niveluri:
1

Descriere apartament

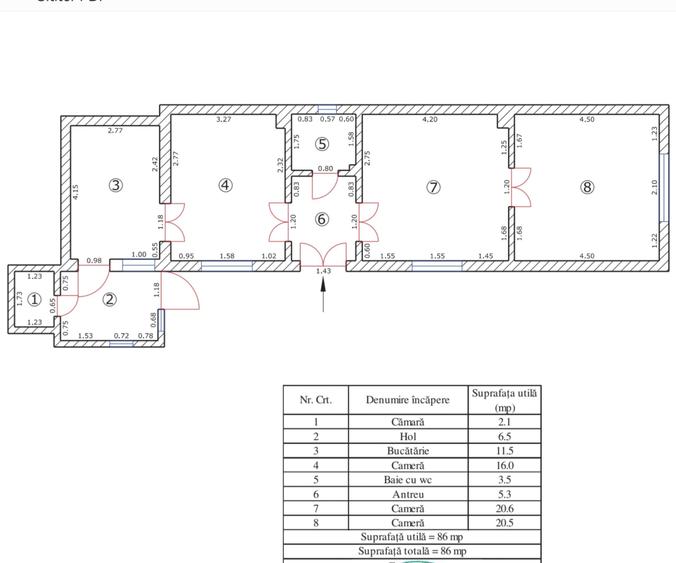
Agentia Imobiliara COV-ALIN, propune la vanzare apartament cu 3 camere situat in Prund-Schei, semidecomandat, parter, suprafata 86 mp, constructie din caramida 1927, clasa energetica B, cota parte din curte comuna. Sunt 3 camere de 16 mp, 20,5 mp si 20,6 mp, bucatarie 11,5 mp, camara 2,1 mp, hol 6,5 mp, baie 3,5 mp, antreu 5,3 mp. Liber la vanzare! Agentia percepe comision 2%+TVA de la cumparator. COD anunt 5053.
Citește mai mult Citește mai puțin
Confort 1 Semidecomandat Curte comună Calorifere Centrală proprie Sobă/teracotă Bine întreținut (Bună)

Detalii apartament

ID anunț: 1949732 Actualizat în: 01 Aprilie 2026
Nr. camere: 3
Suprafață utilă: 86 mp
Suprafață utilă totală: 86 mp
Compartimentare: Semidecomandat
Confort: 1
Etaj: Parter / 1
Nr. băi: 1
An construcție: 1927
Regim înălțime: P+1E

Istoric preț

Facilități

Pereți
Vopsea lavabilă Faianță
Podele
Gresie Parchet
Stare interior
Stare bună
Ferestre cu geam termopan
PVC
Contorizare
Contor gaz
Facilități imobil
Interfon Acoperiș Curte comună
Utilități
Gaze Curent Canalizare Apă
Sistem încălzire
Centrală proprie Calorifere Soba/Teracotă
Amenajare străzi
Asfaltate Iluminat stradal Mijloace de transport în comun

Puncte de interes

Mijloace transport
transport
Statia Piata Unirii , linia 50, 50barat, 51,52
Mijloace transport aprox. 42 m
transport
Piata Unirii
Mijloace transport aprox. 48 m
transport
Statia Ilie Birt , linia 50, 50barat, 51,52
Mijloace transport aprox. 73 m
transport
Statia Piata Unirii , linia 50, 50barat, 51,52
Mijloace transport aprox. 160 m
Școală
education
Grupul Scolar Industrial C. Brancoveanu
Învățământ aprox. 201 m
education
Gradinita nr. 2
Învățământ aprox. 216 m
education
Liceul Pedagogic
Învățământ aprox. 272 m
education
Liceul Andrei Muresanu
Învățământ aprox. 293 m
Recreere
restaurants
Old City
Restaurante aprox. 40 m
parks
Piaţa Unirii
Recreere aprox. 96 m
shopping
Supermarket Dodo
Supermarket/Mall aprox. 1001 m
shopping
Sergiana
Supermarket/Mall aprox. 1292 m

Proprietăți similare

Apartament cu 3 camere semidecomandat, mobilat în Schei
163.000 €
Brașov, Schei
3 camere
90 mp
Parter
Apartament cu 2 camere decomandat, mobilat în Schei
177.000 €
Brașov, Schei
2 camere
91 mp
Etaj 3
Apartament cu 2 camere decomandat, mobilat în Schei
161.000 €
Brașov, Schei
2 camere
56 mp
Etaj 1 / 6
Apartament cu 2 camere decomandat în Schei
189.500 € + TVA
Brașov, Schei
2 camere
59,11 mp
Etaj 1 / 2
Apartament cu 6 camere decomandat în Schei
180.000 €
Brașov, Schei
6 camere
180 mp
Etaj 1 / 1
Apartament cu 2 camere decomandat în Ultracentral
185.000 €
Brașov, Ultracentral
2 camere
55 mp
Parter
Apartament cu 2 camere semidecomandat în Ultracentral
185.000 €
Brașov, Ultracentral
2 camere
55 mp
Parter
Apartament cu 3 camere decomandat, mobilat în Avantgarden
185.000 €
Brașov, Avantgarden
3 camere
90 mp
Etaj 1
Apartament cu 3 camere decomandat, mobilat în Tractorul
190.000 €
Brașov, Tractorul
3 camere
78 mp
Etaj 2

Abonează-te la newsletter să fii primul care primește cele mai noi recomandări de proprietăți și sfaturi de la experți.