Apartament cozy, 4 camere, Racadau - pietonala

199.500 €

Răcădău, Braşov

Nr. camere:
4
Suprafață utilă:
84,8 mp
Etaj:
1
An construcție:
1985

Descriere apartament

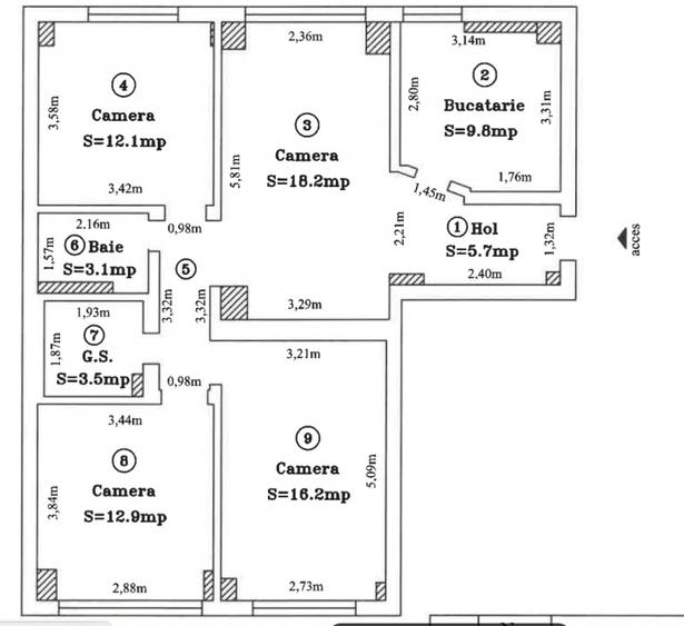
Va propunem spre vanzare un apartament cu 4 camere situat in cartierul Racadau - la pietonala, una din cele mai apreciate zone din cartier. Proprietatea are o structura semidecomandata, este situata la etajul 1 al unui bloc cu 8 etaje din str. Jepilor, chiar langa Scoala nr.4. Apartamentul este compus din 4 camere dupa cum urmeaza: hol de acces deschis cu livingul, bucatarie inchisa, hol secundar cu acces catre cele doua bai (una cu cada si una cu dus) si 3 camere (dormitoare/birou). Proprietatea se vinde impreuna cu acces catre uscatorie si boxa/beci. Imobilul este foarte bine ingrijit, intretinut. Inca de la intrare iti ofera sentimentul de "acasa" - pe care numai un spatiu cald, insorit il poate oferi. Orientarea camerelor este catre Est si Vest, iar privelistea se face catre doua laturi: una catre pietonala Racadau si cealalta catre munte. Se vinde mobilat si utilat, cu exceptia catorva lucruri (mobilierul din zona de living - mobilierul din lemn, pianina, mobilierul din dormitorul copilului, precum si frigiderul). Proprietatea are un loc de parcare (inchiriat de la Primarie). Imobilul este foarte bine intretinut si pastreaza o atmosfera calda si cozy, perfecta pentru o familie sau pentru cei care isi doresc confort si acces facil la toate punctele de interes din zona. Despre cartierul Racadau: Racadau este una dintre cele mai verzi si linistite zone ale Brasovului, apreciata pentru aerul curat si proximitatea fata de padure. Cartierul dispune de: pietonala moderna, cu zone de plimbare si piste de biciclete, acces facil la gradinite, scoli, supermarketuri si piete locale, multiple spatii de joaca si locuri de relaxare pentru intreaga familie, transport public bine conectat cu centrul orasului, atmosfera sigura si comunitate activa, ideala pentru familii. Pentru informatii suplimentare si vizionari, va stam cu drag la dispozitie.
Citește mai mult Citește mai puțin
Confort 1 Semidecomandat Mobilat Parțial Calorifere Centrală proprie Beci Bine întreținut (Bună)

Detalii apartament

ID anunț: 2012172 Actualizat în: 09 Februarie 2026
Nr. camere: 4
Suprafață utilă: 84,8 mp
Suprafață utilă totală: 84,8 mp
Compartimentare: Semidecomandat
Confort: 1
Etaj: Etaj 1
Nr. băi: 2
An construcție: 1985

Istoric preț

Facilități

Pereți
Vopsea lavabilă
Podele
Parchet Gresie
Ușă intrare
Parchet Metal Lemn
Uși interior
Lemn
Stare interior
Bună
Contorizare
Apometre Contor căldură Contor gaz
Bucătărie
Mobilată Parțial utilată
Mobilat
Parțial
Electrocasnice
Mașină de spălat rufe Aragaz Hotă
Alte spații utile
WC Serviciu Boxă la subsol
Dotări imobil
Interfon Lift
Utilități
Curent Apă Canalizare Gaze Mașină de spălat rufe Aragaz / Plită
Sistem încălzire
Centrală proprie Calorifere
Amenajare străzi
Asfaltate Mijloace de transport în comun

Puncte de interes

Mijloace transport
transport
Scoala Generala Nr. 20
Mijloace transport aprox. 212 m
transport
Statia Scoala Generala 20, linia 3,10,30,31,32,33
Mijloace transport aprox. 221 m
transport
Scoala Generala Nr. 20
Mijloace transport aprox. 224 m
transport
Muncii
Mijloace transport aprox. 321 m
Școală
education
Liceul de Arte Plastice "Hans Mattis-Teutsch"
Învățământ aprox. 143 m
education
Scoala Generala nr 20
Învățământ aprox. 189 m
education
Gradinita cu program normal nr. 16 (fosta nr. 71)
Învățământ aprox. 338 m
education
Scoala Generală Nr. 25
Învățământ aprox. 426 m
Recreere
parks
Parc
Recreere aprox. 180 m
restaurants
Bogado
Restaurante aprox. 227 m
shopping
Profi
Supermarket/Mall aprox. 235 m
shopping
Profi
Supermarket/Mall aprox. 532 m

Proprietăți similare

Apartament cu 4 camere decomandat, mobilat în Răcădău
187.900 €
Brașov, Răcădău
4 camere
81 mp
Etaj 7 / 8
Apartament cu 3 camere decomandat, mobilat în Răcădău
205.000 €
Brașov, Răcădău
3 camere
75 mp
Etaj 6
Apartament cu 3 camere decomandat în Răcădău
215.000 € + TVA
Brașov, Răcădău
3 camere
85 mp
Etaj 2
Apartament cu 3 camere decomandat în Răcădău
215.000 €
Brașov, Răcădău
3 camere
65 mp
Etaj 10
Apartament cu 2 camere decomandat, mobilat în Răcădău
189.000 €
Brașov, Răcădău
2 camere
57 mp
Etaj 7 / 8
Apartament cu 2 camere decomandat în Răcădău
194.900 €
Brașov, Răcădău
2 camere
98 mp
Etaj 4 / 13
Apartament cu 3 camere decomandat, mobilat în Răcădău
219.000 €
Brașov, Răcădău
3 camere
85 mp
Etaj 7
Apartament cu 3 camere decomandat în Răcădău
215.102 €
Brașov, Răcădău
3 camere
99 mp
Etaj 2
Apartament cu 4 camere decomandat în Răcădău
197.000 €
Brașov, Răcădău
4 camere
80 mp
Etaj 1

Abonează-te la newsletter să fii primul care primește cele mai noi recomandări de proprietăți și sfaturi de la experți.