Investitie, genereaza o chirie de 500€ | Comision 0%

90.000 €

Răcădău, Braşov

Nr. camere:
2
Suprafață utilă:
32,74 mp
Etaj:
Parter / 7
An construcție:
1984
Nr. niveluri:
7

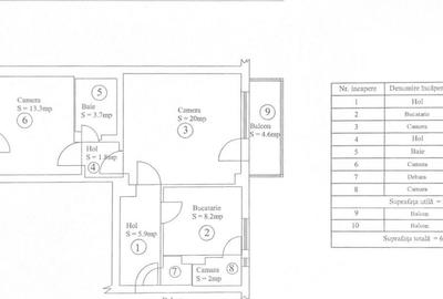
Descriere apartament

LOCALIZARE: Acest imobil este situat in zona pietonala - Racadau, in imediata apropiere a parcului Ursul. COMPARTIMENTARE: - Acces direct in prima incapere, care este delimitata vizual in zona de acces si zona de lounge; - Cea de a doua camera ce comunica cu grupul sanitar si cu spatiul tehnic; - Grup sanitar dotat cu wc si chiuveta. DOTARI: - sistem de alarma; - camere supraveghere; - panouri radiante pe fiecare camera; - geamuri tripan. Vanzarea proprietatii se va face cu mobilierul aferent prezentei ofertari. Imobilul este situat intr-o zona de blocuri, accesul auto, pana in zona de centru a orasului facandu-se in cca. 3 minute. PRETABIL: Cafenea, Florarie, Salon Beauty, Cabinet Medical, Birou. ATRACTII ZONA: Magazine, restaurante, parcuri, scoli, spitale. ACCESIBILITATE: Transport public in apropiere. NOTA: Spatiul este inchiriat si genereaza o chirie de 500€/luna Comision de 0% Structura acestei prezentari nu poate fi reprodusa, fara acordul scris al The Seller and Partners.
Citește mai mult Citește mai puțin
Confort 1 Decomandat Mobilat

Detalii apartament

Actualizat în: 12 Mai 2026 ID anunț: 1059646
Nr. camere: 2
Suprafață utilă: 32,74 mp
Suprafață utilă totală: 32,74 mp
Compartimentare: Decomandat
Confort: 1
Etaj: Parter / 7
Nr. băi: 1
An construcție: 1984
Regim înălțime: P+7E

Istoric preț

Facilități

Pereți
Vopsea lavabilă
Podele
Gresie Parchet
Ușă intrare
Parchet PVC Lemn
Uși interior
PVC Lemn
Contorizare
Apometre
Mobilat
Mobilat
Diverse
Sistem de alarmă
Utilități
Curent Apă Canalizare Gaze Cablu Supraveghere video
Internet
Cablu Wireless
Amenajare străzi
Iluminat stradal Mijloace de transport în comun Asfaltate
Servicii imobil
Supraveghere video

Puncte de interes

Mijloace transport
transport
Statia Scoala Generala 20, linia 3,10,30,31,32,33
Mijloace transport aprox. 98 m
transport
Scoala Generala Nr. 20
Mijloace transport aprox. 102 m
transport
Scoala Generala Nr. 20
Mijloace transport aprox. 239 m
transport
Muncii
Mijloace transport aprox. 305 m
Școală
education
Liceul de Arte Plastice "Hans Mattis-Teutsch"
Învățământ aprox. 179 m
education
Scoala Generala nr. 4
Învățământ aprox. 186 m
education
Scoala 4
Învățământ aprox. 204 m
education
Gradinita cu program prelungit nr. 17 (fosta nr. 66)
Învățământ aprox. 248 m
Recreere
parks
Parc
Recreere aprox. 67 m
restaurants
Terasa pietonal
Restaurante aprox. 101 m
shopping
Profi
Supermarket/Mall aprox. 240 m
shopping
Profi
Supermarket/Mall aprox. 360 m

Proprietăți similare

Apartament cu 2 camere semidecomandat în Răcădău
90.000 €
Brașov, Răcădău
2 camere
56 mp
Etaj 2 / 10
Apartament cu 2 camere decomandat în Tractorul
94.325 €
Brașov, Tractorul
2 camere
55 mp
Mansardă
Apartament cu 2 camere nedecomandat în Astra
82.500 €
Brașov, Astra
2 camere
47 mp
Parter
Apartament cu 2 camere decomandat, mobilat în Bartolomeu
86.900 €
Brașov, Bartolomeu
2 camere
49 mp
Etaj 2
Apartament cu 3 camere decomandat în Brașovul Vechi
99.000 €
Brașov, Brașovul Vechi
3 camere
66,3 mp
Etaj 1
Apartament cu 2 camere semidecomandat în Centrul Civic
91.900 €
Brașov, Centrul Civic
2 camere
47 mp
Demisol / 2
Apartament cu 2 camere semidecomandat în Centrul Civic
85.000 €
Brașov, Centrul Civic
2 camere
40 mp
Etaj 1 / 4
Apartament cu 2 camere semidecomandat în Gării
82.500 €
Brașov, Gării
2 camere
47 mp
Parter / 4
Apartament cu 2 camere decomandat, mobilat în Noua
84.900 €
Brașov, Noua
2 camere
47,37 mp
Etaj 5

Abonează-te la newsletter să fii primul care primește cele mai noi recomandări de proprietăți și sfaturi de la experți.