Apartament 4 camere situat in Noua in strada Lacurilor, 2 bai, etaj 2, liber!

120.000 €

Noua, Braşov

Nr. camere:
4
Suprafață utilă:
77 mp
Etaj:
2 / 4
An construcție:
1978
Nr. niveluri:
4

Descriere apartament

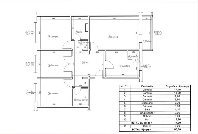
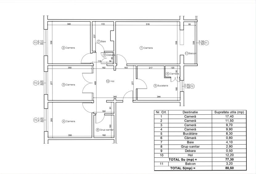
Agentia Imobiliara COV-ALIN, propune la vanzare apartament cu 4 camere situat in strada Lacurilor, confort 1 decomandat, etaj 2, constructie bloc 1978, suprafata utila 77,30 mp si balcon 3,20 mp, 2 bai, centrala termica, geamuri termopan, izolat exterior, balcon inchis in termopan, clasa energetica B. Sunt 4 camere de 17,40 mp, 11,50 mp, 9, 70 mp, 9,90 mp, bucatarie 8,30 mp, baie 4,10 mp, grup sanitar 2,90 mp, camara 0,80 mp, hol 12,20 mp, debara 0,50 mp, suprafata totala 80,50 mp. Liber la vanzare! Agentia percepe comision 2%+TVA de la cumparator. COD anunt 1452.
Citește mai mult Citește mai puțin
Confort 1 Decomandat Nemobilat Calorifere Centrală proprie Bine întreținut (Bună)

Detalii apartament

ID anunț: 786637 Actualizat în: 16 Aprilie 2026
Nr. camere: 4
Suprafață utilă: 77 mp
Suprafață utilă totală: 77 mp
Compartimentare: Decomandat
Confort: 1
Etaj: Etaj 2 / 4
Nr. băi: 2
An construcție: 1978
Regim înălțime: P+4E

Istoric preț

Facilități

Contorizare
Contor gaz
Mobilat
Nemobilat
Alte spații utile
Debara WC Serviciu
Facilități imobil
Interfon
Utilități
Gaze Curent Canalizare Apă
Sistem încălzire
Centrală proprie Calorifere
Ușă intrare
Metal PVC
Stare interior
Stare bună
Izolații termice
Exterior
Ferestre cu geam termopan
PVC
Amenajare străzi
Asfaltate Iluminat stradal Mijloace de transport în comun

Puncte de interes

Mijloace transport
transport
Statia Poiana Darste, linia 17,21,35
Mijloace transport aprox. 30 m
transport
Aurora
Mijloace transport aprox. 321 m
transport
Statia Strand Noua, linia 17,21,35
Mijloace transport aprox. 344 m
transport
Strand Noua
Mijloace transport aprox. 366 m
Școală
education
Gradinita cu program normal nr. 21 SG (fosta nr. 68)
Învățământ aprox. 158 m
education
Gradinita Cetatea Prichindeilor
Învățământ aprox. 453 m
education
Scoala generala Nr 29
Învățământ aprox. 474 m
education
Scoala generala nr 21
Învățământ aprox. 640 m
Recreere
parks
Teren sportiv
Recreere aprox. 177 m
restaurants
la piru
Restaurante aprox. 324 m
shopping
Metro
Supermarket/Mall aprox. 949 m
shopping
Selgros
Supermarket/Mall aprox. 1082 m

Proprietăți similare

Apartament cu 3 camere decomandat, mobilat în Noua
127.000 €
Brașov, Noua
3 camere
64 mp
Etaj 1 / 4
Apartament cu 3 camere decomandat în Noua
130.000 €
Brașov, Noua
3 camere
80 mp
Etaj 4
Apartament cu 3 camere decomandat în Noua
119.000 €
Brașov, Noua
3 camere
68 mp
Parter
Apartament cu 2 camere semidecomandat în Noua
109.150 € + TVA
Brașov, Noua
2 camere
59 mp
Etaj 2 / 8
Apartament cu 2 camere decomandat, mobilat în Noua
115.000 €
Brașov, Noua
2 camere
50 mp
Parter / 4
Apartament cu 4 camere decomandat în Noua
130.000 €
Brașov, Noua
4 camere
120 mp
Etaj 2
Apartament cu 3 camere semidecomandat, mobilat în Noua
130.000 €
Brașov, Noua
3 camere
65 mp
Etaj 9 / 10
Apartament cu 2 camere decomandat în Noua
115.000 €
Brașov, Noua
2 camere
52 mp
Etaj 4
Apartament cu 3 camere decomandat în Noua
127.500 €
Brașov, Noua
3 camere
68 mp
Etaj 10

Abonează-te la newsletter să fii primul care primește cele mai noi recomandări de proprietăți și sfaturi de la experți.