Apartament deosebit cu 3 camere str. Castelului

240.000 €

Centrul Istoric, Braşov

Nr. camere:
3
Suprafață utilă:
73,2 mp
Etaj:
1 / 1
An construcție:
1900
Nr. niveluri:
1

Descriere apartament

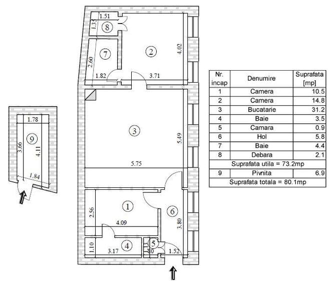
Va propunem spre vanzare acest apartament deosebit cu trei camere situat pe strada Castelului, in imediata apropiere a Piatei Sfatului si a tuturor atractiilor turistice si culturale pe care orasul Brasov le ofera. Apartamentul se afla la etajul 1 al unei cladiri bine ingrijite in exterior, dispune de o suprafata utila de 73,2 mp si este impartit dupa cum urmeaza: un hol generos si luminos, debara, un dormitor intim cu baie proprie ce beneficiaza de incalzire in pardoseala si dus walk-in, un living amplu, open-space cu bucataria si al doilea dormitor, spatios, cu baie proprie si incalzire in pardoseala, dressing. Mai mult, in proprietate exista si un beci in suprafata de 6,9 mp, cat si o cota parte din gradina, aproape de Zidul Cetatii, care ofera liniste si o priveliste deosebita asupra Centrului Istoric. Datorita structurii si pozitionarii sale, proprietatea se poate compartimenta in doua garsoniere, fiecare cu intrare separata si baie proprie. Achizitionat ca si caminul proprietarilor, acest apartament a fost renovat de acestia, constructori de meserie, de la caramida si nefacand rabat de calitate in ceea ce priveste materialele alese, cu o deosebita implicare, pentru a isi satisface propriile nevoi de confort. Proprietarii sai il ingrijesc in continuare cu tot interesul, pentru a isi pastra un camin primitor si intim, fiind folosit astfel doar in scop personal. Momentan, exista incalzire in pardoseala doar in bai, dar intregul apartament este pregatit in acest scop, in cazul in care viitorul sau proprietar va dori o modernizare. Va invitam la o vizionare pentru a putea detalia toate imbunatatirile care au fost efectuate in aceasta proprietate si care nu sunt neaparat vizibile, dar care asigura o buna functionare si pe termen indelungat a unei locuinte. ***Pretul afisat include si mobilierul de bucatarie si electrocasnicele.*** Consideram aceasta proprietate potrivita pentru acele persoane care doresc sa locuiasca in Centrul Istoric al orasului Brasov, aproape de toate obiectivele turistice si culturale pe care acest oras le ofera. De asemenea, este ideal ca si apartament de vacanta, dar este pretabil si ca investitie, pentru inchiriere ulterioara sau introducerea in circuitul turistic. Zona este renumita pentru frumusetea ei, farmecul cladirilor vechi, proximitatea fata de padure si masivul Tampa, strazile pietonale, unele inguste si intime, restaurante, baruri si cafenele pentru toate gusturile. Clasa energetica B Se accepta si credit ipotecar. Apartamentul a fost dobandit prin programul Prima Casa, existand deja un acord de instrainare. Comision 2% pentru cumparator. Pentru detalii suplimentare sau vizionari, va rugam nu ezitati sa ne contactati la numarul de telefon sau prin e-mail, la adresa .
Citește mai mult Citește mai puțin
Semidecomandat Nemobilat Centrală proprie

Detalii apartament

Actualizat în: 20 Mai 2026 ID anunț: 1200564
Nr. camere: 3
Suprafață utilă: 73,2 mp
Suprafață utilă totală: 73,2 mp
Compartimentare: Semidecomandat
Etaj: Etaj 1 / 1
Nr. băi: 1
An construcție: 1900
Regim înălțime: P+1E

Istoric preț

Facilități

Pereți
Vopsea lavabilă
Podele
Parchet
Uși interior
Lemn
Sistem încălzire
Centrală proprie
Bucătărie
Utilată Mobilată
Mobilat
Nemobilat
Electrocasnice
Aragaz Frigider
Amenajare străzi
Asfaltate

Puncte de interes

Mijloace transport
transport
Statia N.Balcescu , linia 50, 50barat, 51,52
Mijloace transport aprox. 259 m
transport
Nicolae Balcescu
Mijloace transport aprox. 259 m
transport
Biserica Neagra
Mijloace transport aprox. 398 m
transport
Statia "Biserica Neagra", linia 50,50barat,51,52
Mijloace transport aprox. 411 m
Școală
education
liceul teoretic Johannes Honterus
Învățământ aprox. 206 m
education
Gradinita cu program normal nr. 1A (fosta nr.21)
Învățământ aprox. 216 m
education
Liceul Teoretic J. Honterus
Învățământ aprox. 238 m
education
Grupul Scolar de Industrie Usoara
Învățământ aprox. 262 m
Recreere
restaurants
Rawdia Brasov
Restaurante aprox. 99 m
parks
Teren Tenis/Volei
Recreere aprox. 123 m
shopping
Supermarket Dodo
Supermarket/Mall aprox. 338 m
shopping
Sergiana
Supermarket/Mall aprox. 597 m

Proprietăți similare

Apartament cu 2 camere, mobilat în Centrul Istoric
250.000 €
Brașov, Centrul Istoric
2 camere
87 mp
Parter
Apartament cu 2 camere semidecomandat, mobilat în Centrul Istoric
250.000 €
Brașov, Centrul Istoric
2 camere
100 mp
Parter
Apartament cu 4 camere nedecomandat, mobilat în Centrul Istoric
228.700 €
Brașov, Centrul Istoric
4 camere
109 mp
Etaj 1 / 2
Apartament cu 3 camere decomandat în Centrul Istoric
229.990 €
Brașov, Centrul Istoric
3 camere
100 mp
Etaj 1
Apartament cu 3 camere circular în Centrul Istoric
220.000 €
Brașov, Centrul Istoric
3 camere
80 mp
Etaj 1 / 2
Apartament cu 3 camere semidecomandat, mobilat în Centrul Istoric
260.000 €
Brașov, Centrul Istoric
3 camere
113 mp
Parter / 1
Apartament cu 3 camere decomandat în Centrul Istoric
260.000 €
Brașov, Centrul Istoric
3 camere
70 mp
Parter
Apartament cu 4 camere decomandat, mobilat în Centrul Istoric
235.000 €
Brașov, Centrul Istoric
4 camere
106,2 mp
Parter / 2
Apartament cu 3 camere decomandat în Centrul Istoric
219.000 €
Brașov, Centrul Istoric
3 camere
72 mp
Etaj 1 / 1

Abonează-te la newsletter să fii primul care primește cele mai noi recomandări de proprietăți și sfaturi de la experți.