Apartament 4 camere de vânzare, Brașovul Vechi, structura generoasa

235.000 €

Braşovul Vechi, Braşov

Nr. camere:
4
Suprafață utilă:
106,2 mp
Etaj:
1 / 2
An construcție:
1978
Nr. niveluri:
2

Descriere apartament

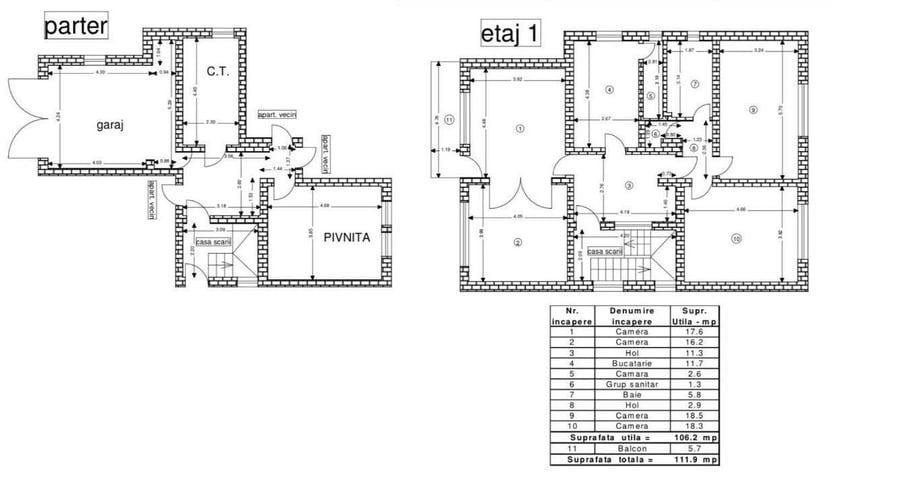
IAdvise Real Estate oferă spre vânzare un apartament spatios, decomandat, cu 4 camere și 2 băi, situat într-o casă din zona Brașovul Vechi, la câteva minute de Livada Poștei și Centrul Istoric. Locuința are suprafață utilă de 106,2 mp, plus balcon 5,7 mp, și beneficiază de curte proprie — poziționarea casei ferită de stradă asigură liniște și intimitate. Compartimentare și dotări: 4 camere (living + 3 dormitoare) — decomandat 2 băi Bucătărie separată și cămară Balcon: 5 mp Garaj mare la parter Cameră tehnică generoasă (posibil spațiu de depozitare/atelier) Pivniță și curte proprie Stare: [specificați finisaje/renovări dacă doriți] Avantaje: Suprafață generoasă (106,2 mp utili) — ideal pentru familie sau birou la domiciliu Garaj și spații tehnice/depozitare incluse (valoroase pentru depozitare și confort) Curte proprie și poziționare liniștită (nu este la stradă) Locație excelentă: Brașovul Vechi — acces rapid la Livada Poștei și Centrul Istoric
Citește mai mult Citește mai puțin
Confort 1 Semidecomandat Nemobilat Grădină Calorifere Centrală proprie

Detalii apartament

ID anunț: 3663994 Actualizat în: 27 Februarie 2026
Nr. camere: 4
Suprafață utilă: 106,2 mp
Suprafață utilă totală: 106,2 mp
Compartimentare: Semidecomandat
Confort: 1
Etaj: Etaj 1 / 2
Nr. băi: 2
An construcție: 1978
Regim înălțime: P+2E

Istoric preț

Facilități

Pereți
Faianță Vopsea lavabilă
Podele
Gresie Parchet
Ușă intrare
PVC Parchet Metal
Ferestre cu geam termopan
PVC
Utilități
Curent Apă Canalizare Gaze Cablu
Sistem încălzire
Calorifere Centrală proprie
Internet
Cablu
Mobilat
Nemobilat
Alte spații utile
WC Serviciu
Facilități imobil
Grădină
Amenajare străzi
Iluminat stradal Mijloace de transport în comun Asfaltate

Puncte de interes

Mijloace transport
transport
Statia "Biserica Romana", linia 41
Mijloace transport aprox. 325 m
transport
Bisericii Romane
Mijloace transport aprox. 334 m
transport
Bisericii Romane
Mijloace transport aprox. 338 m
transport
Statia Bisericii Romane, liniile 14,28,5,41
Mijloace transport aprox. 349 m
Școală
education
Gradinita cu program normal nr. 3A (fosta nr. 7)
Învățământ aprox. 236 m
education
Gradinita cu program normal nr. 4A (fosta nr. 22)
Învățământ aprox. 317 m
education
Scoala Generala Nr. 12
Învățământ aprox. 376 m
education
Scoala Gimnaziala Nr.12
Învățământ aprox. 376 m
Recreere
parks
Dealul Cetăţii
Recreere aprox. 276 m
restaurants
Cetatuia
Restaurante aprox. 311 m
shopping
Kaufland
Supermarket/Mall aprox. 653 m
shopping
Sergiana
Supermarket/Mall aprox. 781 m

Proprietăți similare

Apartament în Brașovul Vechi
249.000 €
Brașov, Brașovul Vechi
Apartament cu 2 camere decomandat în Brașovul Vechi
220.000 € + TVA
Brașov, Brașovul Vechi
2 camere
67,3 mp
2024
Apartament cu 3 camere decomandat, mobilat în Brașovul Vechi
235.000 €
Brașov, Brașovul Vechi
3 camere
58 mp
Parter / 9
Apartament cu 2 camere decomandat în Brașovul Vechi
245.000 € + TVA
Brașov, Brașovul Vechi
2 camere
77,5 mp
2024
Apartament cu 2 camere decomandat în Brașovul Vechi
220.000 € + TVA
Brașov, Brașovul Vechi
2 camere
67,3 mp
2024
Apartament cu 4 camere decomandat în Brașovul Vechi
235.000 €
Brașov, Brașovul Vechi
4 camere
107 mp
Etaj 1 / 2
Apartament cu 2 camere decomandat în Brașovul Vechi
215.000 €
Brașov, Brașovul Vechi
2 camere
51,27 mp
Etaj 1
Apartament cu 3 camere decomandat, mobilat în Brașovul Vechi
219.000 €
Brașov, Brașovul Vechi
3 camere
68 mp
Etaj 2
Apartament cu 2 camere decomandat în Brașovul Vechi
215.000 € + TVA
Brașov, Brașovul Vechi
2 camere
54,2 mp
2024

Abonează-te la newsletter să fii primul care primește cele mai noi recomandări de proprietăți și sfaturi de la experți.