Apartament nou, modern, cu 2 camere și 2 balcoane – Bartolomeu Nord, Brașov

128.520 € + TVA

Bartolomeu, Braşov

Nr. camere:
2
Suprafață utilă:
61,2 mp
Etaj:
3 / 3
An construcție:
2024
Nr. niveluri:
3

Descriere apartament

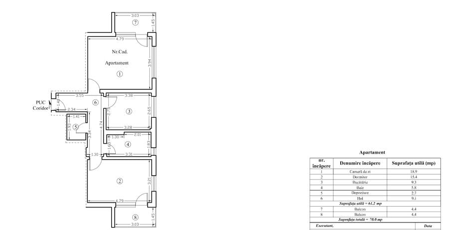
Priveliște montană | 100% nou | Acces rapid spre centru | Disponibil imediat Imenso Global Real Estate vă oferă oportunitatea unică de a deveni primul proprietar al unui apartament superb, cu 2 camere, situat în zona Bartolomeu-Nord, Brașov – chiar la granița cu zona Griviței. - Locuință nouă, finalizată în 2024 - Design modern, spații generoase, foarte luminoase - 2 balcoane spațioase cu orientare dublă și priveliști superbe - Etaj 3/3 – fără vecini deasupra! Detalii apartament: • Suprafață utilă: 61,2 mp • Suprafață totală: 70 mp • Compartimentare decomandată • Etaj: 3 din 3 (bloc cu ascensor) • 2 balcoane (fiecare de 4,4 mp) – cu vedere pe două laturi opuse (Nord-Sud) • Cameră de zi: 18,9 mp | Dormitor: 15,4 mp | Bucătărie: 9,3 mp • Baie complet utilată • Cameră de depozitare cu racord pentru mașina de spălat Finisaje premium și dotări: • Încălzire prin pardoseală – centrală în condensație Saunier Duval • Parchet de calitate, gresie, vopsea lavabilă, tencuială mecanizată • Baie echipată complet: cadă, rigolă în pardoseală, lavoar cu mobilier, oglinda, accesorii moderne, geam aerisire • Uși interioare pline, celulare, Porta Doors • Ușă intrare metalică • Tâmplărie PVC tripan Salamander, 6 camere, culoare maro, feronerie ROTO Despre construcție / bloc: • Finalizat în 2024 • Regim: S+P+3E, cu lift modern și interfon de ultima generatie • Construcție: beton armat + cărămidă, izolație exterioară 10 cm • Fațadă cu tencuială decorativă, balcoane cu balustrade de sticlă • Parcări pavate, teren îngrădit, alei cu dale autoblocante • Clasa energetică: B Localizare excelentă: • Zonă liniștită și în plină dezvoltare – ideală pentru familii și tineri • La 5–7 min de mers pe jos de stația de autobuz și magazine • Lidl – 5 min, Kaufland – 10 min, Coresi – 8–10 min cu mașina • Gara Bartolomeu – 10 min • Școli și grădinițe (private/publice) în imediata apropiere • Acces rapid în Centrul Vechi Brașov: 8–10 min cu mașina / 15 min cu autobuzul Prețuri & Detalii financiare: • Preț apartament: 128.520 € + TVA 9% = 140.087 € • Boxă: 2.000 € + TVA 9% = 2.180 € • Loc de parcare: 4.000 € + TVA 19% = 4.760 € • Comision cumpărător: 0%! • Disponibilitate: IMEDIATĂ Apartamentul se predă exact ca în fotografii – complet finisat, pregătit pentru mutare! Nu rata ocazia de a deveni primul proprietar al acestui apartament de excepție, într-un cartier în plină expansiune! Contactează-ne acum și vino să simți pe viu atmosfera acestui apartament cu adevărat special! Pentru vizionări și detalii suplimentare: Telefon și WhatsApp: E-mail:
Citește mai mult Citește mai puțin
Confort 1 Decomandat Nemobilat Centrală proprie Beci Bine întreținut (Bună)

Detalii apartament

ID anunț: 275173 Actualizat în: 04 Martie 2026
Nr. camere: 2
Suprafață utilă: 61,2 mp
Suprafață utilă totală: 61,2 mp
Compartimentare: Decomandat
Confort: 1
Etaj: Etaj 3 / 3
Nr. băi: 1
An construcție: 2024
Regim înălțime: P+3E

Istoric preț

Facilități

Pereți
Faianță Vopsea lavabilă
Podele
Gresie Parchet
Ușă intrare
Parchet Metal PVC
Uși interior
Celulare PVC
Stare interior
Stare bună
Izolații termice
Exterior
Ferestre cu geam termopan
PVC
Contorizare
Contor gaz
Mobilat
Nemobilat
Alte spații utile
Boxă la subsol Debara
Facilități imobil
Lift Videointerfon
Utilități
Curent Apă Canalizare
Sistem încălzire
Centrală proprie
Internet
Fibră optică
Amenajare străzi
Asfaltate Iluminat stradal

Puncte de interes

Mijloace transport
transport
Statia "Ecaterina Teodoroiu", linia 9,29
Mijloace transport aprox. 175 m
transport
Statia "Stadionul Tineretului", linia 3,5barat,23,23barat,16
Mijloace transport aprox. 233 m
transport
Fartec
Mijloace transport aprox. 339 m
transport
Statia "Ioan Huniade", liniile 9,29
Mijloace transport aprox. 348 m
Școală
education
Gradinita cu program prelungit nr. 6 (fosta nr. 35)
Învățământ aprox. 525 m
education
Gradinita cu program prelungit nr. 7 (fosta nr. 63)
Învățământ aprox. 597 m
education
Gradinita privata Gretel Kindergarten
Învățământ aprox. 597 m
education
Academia Fortelor Aeriene "Henri Coanda"
Învățământ aprox. 611 m
Recreere
parks
Park around the bridge (en)
Recreere aprox. 629 m
restaurants
Garden Club
Restaurante aprox. 993 m
shopping
Penny Market
Supermarket/Mall aprox. 1059 m
shopping
Kaufland
Supermarket/Mall aprox. 1087 m

Proprietăți similare

Apartament cu 2 camere decomandat în Bartolomeu
135.000 €
Brașov, Bartolomeu
2 camere
52 mp
Etaj 4
Apartament cu 2 camere decomandat în Bartolomeu
129.900 € + TVA
Brașov, Bartolomeu
2 camere
55,8 mp
Etaj 6
Apartament cu 2 camere decomandat în Bartolomeu
127.900 € + TVA
Brașov, Bartolomeu
2 camere
53,49 mp
Etaj 8
Apartament cu 2 camere decomandat în Bartolomeu
140.000 €
Brașov, Bartolomeu
2 camere
52 mp
Etaj 4
Apartament cu 2 camere decomandat în Bartolomeu
129.900 € + TVA
Brașov, Bartolomeu
2 camere
55,8 mp
Etaj 4
Apartament cu 2 camere decomandat în Bartolomeu
127.900 € + TVA
Brașov, Bartolomeu
2 camere
53,49 mp
Etaj 1
Apartament cu 2 camere decomandat, mobilat în Bartolomeu
140.000 €
Brașov, Bartolomeu
2 camere
54 mp
Parter
Apartament cu 2 camere decomandat în Bartolomeu
129.900 € + TVA
Brașov, Bartolomeu
2 camere
55,01 mp
Etaj 7 / 8
Apartament cu 2 camere decomandat în Bartolomeu
125.800 € + TVA
Brașov, Bartolomeu
2 camere
52,42 mp
Parter / 1

Abonează-te la newsletter să fii primul care primește cele mai noi recomandări de proprietăți și sfaturi de la experți.