Exclusivitate! Apartament cu vedere spectaculoasa spre Tampa

99.900 €

Astra, Braşov

Nr. camere:
2
Suprafață utilă:
48,5 mp
Etaj:
4 / 4
An construcție:
1968
Nr. niveluri:
4

Descriere apartament

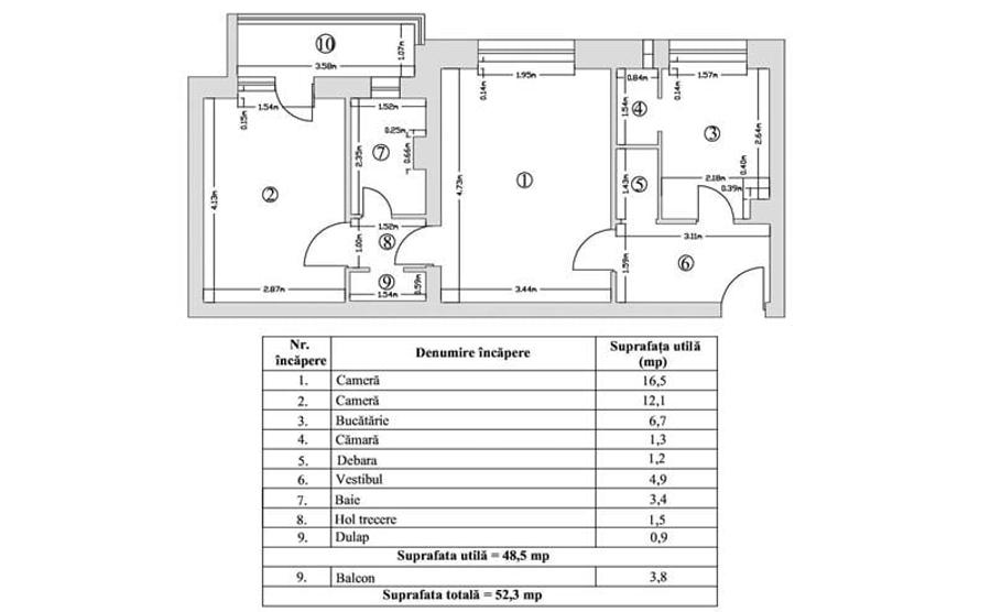
Va propun in exclusivitate un apartament de doua camere situat pe Calea Bucuresti, la doar cativa pași de Piata Astra, un apartament care imbina perfect confortul urban cu farmecul unei privelisti montane. Apartamentul cu o structura semidecomandata, are o suprafata totala de 52.3 mp (48,5 mp suprafata utila a apartamentului, completată de un balcon de 3,8 mp,) si este compartimentat astfel : doua camere, bucatarie cu camara si debara, doua holuri, baie, dormitor si balcon. Apartamentul este pozitionat la etajul 4 al unui imobil cu 4 etaje.(fara probleme cu izolatia) Orientarea sud-vestică oferă lumina naturala din plin pe tot parcursul zilei, iar vederea deschisa catre Tampa transforma fiecare dimineata si apus într-un spectacol. Locuinta este ingrijita, primitoare si se vinde mobilata, fiind gata pentru mutare imediata. Beneficiaza de: izolatie exterioara, pentru un confort termic sporit, ferestre termopan, centrala termica proprie, aer conditionat, parchet, gresie, faianta si rulouri exterioare. Pozitionarea este un real avantaj: statia de autobuz chiar în fata blocului, scoli, magazine, piata farmacii si toate facilitătile necesare vietii de zi cu zi se afla la cateva minute distanta. Este un apartament care te cucereste prin lumina, priveliste si stare de bine — ideal atat pentru locuit, cat si pentru investitie, într-o zona cu cerere constanta. Comision agentie : 2% din pretul de vanzare.
Citește mai mult Citește mai puțin
Confort 1 Semidecomandat Mobilat Mobilat Aer condiționat Centrală proprie

Detalii apartament

ID anunț: 3228574 Actualizat în: 05 Martie 2026
Nr. camere: 2
Suprafață utilă: 48,5 mp
Suprafață utilă totală: 48,5 mp
Compartimentare: Semidecomandat
Confort: 1
Etaj: Etaj 4 / 4
Nr. băi: 1
An construcție: 1968
Regim înălțime: P+4E

Istoric preț

Facilități

Pereți
Faianță Vopsea lavabilă
Podele
Parchet Gresie
Rulouri/Obloane
Lemn PVC
Ușă intrare
Parchet Lemn Metal PVC
Uși interior
Lemn PVC
Izolații termice
Exterior
Ferestre cu geam termopan
Lemn PVC
Contorizare
Apometre Contor gaz
Mobilat
Mobilat
Electrocasnice
Aragaz Frigider
Utilități
Apă Curent Gaze Cablu Aragaz / Plită Frigider
Sistem încălzire
Centrală proprie
Internet
Cablu
Climatizare
Aer condiționat
Amenajare străzi
Asfaltate

Puncte de interes

Mijloace transport
transport
Berzei
Mijloace transport aprox. 84 m
transport
Statia "Berzei", linia 5,17,35
Mijloace transport aprox. 120 m
transport
Statia "Berzei", linia 5
Mijloace transport aprox. 139 m
transport
Berzei
Mijloace transport aprox. 140 m
Școală
education
Gradinita cu program prelungit nr 23
Învățământ aprox. 152 m
education
Gradinita 23
Învățământ aprox. 153 m
education
Scoala Generala nr 23
Învățământ aprox. 249 m
education
Gradinita Boboceii
Învățământ aprox. 320 m
Recreere
parks
Parcul Someşul
Recreere aprox. 118 m
shopping
Mega Image
Supermarket/Mall aprox. 158 m
restaurants
Pizza Napoli
Restaurante aprox. 285 m
shopping
Billa
Supermarket/Mall aprox. 436 m

Proprietăți similare

Apartament cu 2 camere decomandat, mobilat în Astra
108.000 €
Brașov, Astra
2 camere
55 mp
Etaj 1
Apartament cu 2 camere decomandat în Astra
105.000 €
Brașov, Astra
2 camere
45 mp
Parter
Apartament cu 2 camere decomandat în Astra
104.900 €
Brașov, Astra
2 camere
51 mp
Etaj 8 / 10
Apartament cu 2 camere decomandat, mobilat în Astra
91.000 €
Brașov, Astra
2 camere
50 mp
Parter
Apartament cu 2 camere semidecomandat în Astra
95.000 €
Brașov, Astra
2 camere
51,05 mp
Parter / 4
Apartament cu 2 camere semidecomandat, mobilat în Astra
103.999 €
Brașov, Astra
2 camere
47 mp
Parter / 4
Apartament cu 2 camere decomandat în Astra
99.800 €
Brașov, Astra
2 camere
54 mp
Etaj 2
Apartament cu 2 camere semidecomandat, mobilat în Astra
100.000 €
Brașov, Astra
2 camere
47 mp
Etaj 2 / 2
Apartament cu 2 camere decomandat, mobilat în Astra
95.500 €
Brașov, Astra
2 camere
48 mp
Etaj 10 / 10

Abonează-te la newsletter să fii primul care primește cele mai noi recomandări de proprietăți și sfaturi de la experți.