COMISION 0% - Apartamente cu 2 si 3 camere - Bdul Republicii 44

97.200 €

Republicii, Baia Mare

Nr. camere:
2
Suprafață utilă:
66 mp
Etaj:
3
An construcție:
2026

Descriere apartament

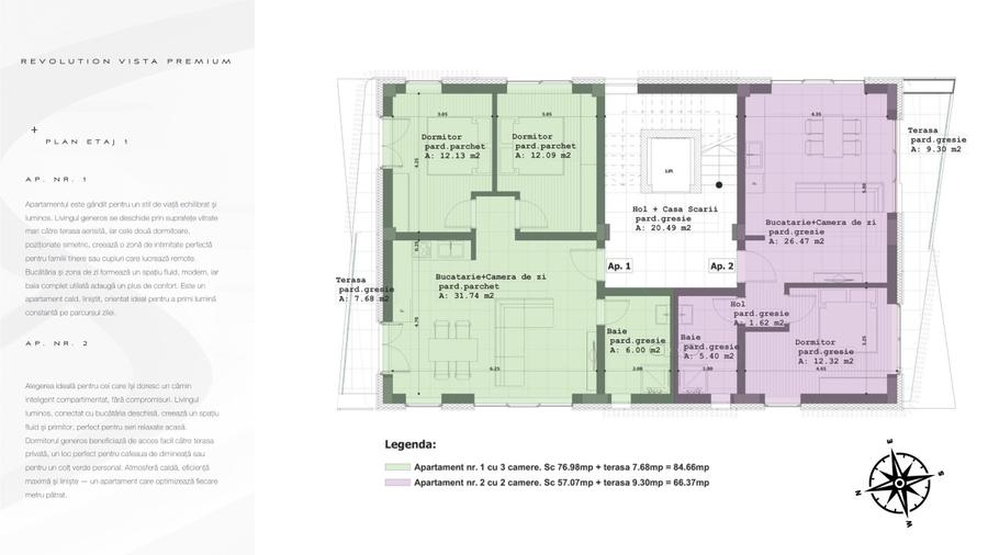
NEW! Descopera cel mai nou si modern complex rezidential REVOLUTION VISTA PREMIUM, situat in zona Catedralei Sfanta Treime, pe Bdul Republicii 44 din Baia Mare, un proiect marca Revolution Residence. Va propunem spre vanzare apartamente cu 2 si 3 camere ce au o suprafata cuprinsa intre 57.07 mpc si 76.98 mpc plus terasa cu suprafete cuprinse intre 7.68mpc si 9.3mpc. Achizitioneaza unul din apartamentele cu 2 sau 3 camere si beneficiezi de design gratuit pentru amenajarea camerei de baie. Detalii proiect: - imobil locuinte P+4Etaje si cuprinde un total de 8 unitati de apartamente - locatie: Bdul Republicii 44, Baia Mare - fatada ventilata, costuri reduse in viitor legate de intretinerea exterioara - termoizolatie exterioara realizata cu vata bazaltica de 15 cm - peretii interiori dintre apartamente si cei comuni cu, casa scarii sunt formati din doua randuri de caramida plus vata bazaltica, pentru un confort termic si fonic sporit - design ultra modern - finisaje moderne - parcare exterioara - supraveghere video - acces privat - lift - spatii comerciale la parterul blocului - design interior personalizat pentru spatiile comune - pozitionare excelenta, blocul fiind retras, ferit de agitatia orasului, pozitionarea fiind intr-o zona linistita - standarde ridicate de siguranta si calitate - imobilul se vinde locuibil, cu instalatie de incalzire prin pardoseala si centrala termica in condensare Facilitati zona: - culte religioase, Catedrala Sfanta Treime, la cca 200m distanta - mall Shopping Park Baia Mare, la cca 250m distanta - supermarket Lidl, Kaufland, la cca 250m distanta - zona relaxare, parcul central, cca 500m distanta - unitati de invatamant, cca 250m distanta - zona cazare, hotel Europa, la cca 800m distanta - statii alimentare Petrom, la cca 50m distanta Preturi incepand de la 1450Euro mpc + TVA, care se va aplica conform normelor in vigoare. Pentru mai multe detalii, ne puteti contacta la numarul de telefon .796
Citește mai mult Citește mai puțin
Decomandat

Detalii apartament

ID anunț: Actualizat în: 03 Februarie 2026
Nr. camere: 2
Suprafață utilă: 66 mp
Compartimentare: Decomandat
Etaj: Etaj 3
An construcție: 2026

Facilități

Comision
0%

Puncte de interes

Mijloace transport
transport
Gara CFR
Mijloace transport aprox. 1259 m
transport
Baia Mare
Mijloace transport aprox. 1326 m
transport
Dalia
Mijloace transport aprox. 1330 m
transport
Autogara
Mijloace transport aprox. 1359 m
Școală
education
Colegiul Economic Nicolae Titulescu
Învățământ aprox. 844 m
education
Scoala Generala Dimitrie Cantemir
Învățământ aprox. 853 m
education
Scoala Gimnaziala Ion Luca Caragiale
Învățământ aprox. 1226 m
education
Scoala Gimnaziala Ion Luca Caragiale
Învățământ aprox. 1230 m
Recreere
shopping
Kaufland
Supermarket/Mall aprox. 398 m
parks
HCM Baia Mare
Recreere aprox. 448 m
restaurants
Smart Food
Restaurante aprox. 553 m
shopping
Carrefour Market
Supermarket/Mall aprox. 688 m

Proprietăți similare

Apartament cu 3 camere decomandat în Republicii
98.000 €
Baia Mare, Republicii
3 camere
65 mp
Etaj 3 / 4
Apartament cu 2 camere decomandat în Republicii
97.200 € + TVA
Baia Mare, Republicii
2 camere
45,81 mp
Etaj 3 / 4
Apartament cu 2 camere decomandat în Republicii
97.200 €
Baia Mare, Republicii
2 camere
66 mp
Etaj 2
Apartament cu 3 camere semidecomandat în Republicii
105.000 €
Baia Mare, Republicii
3 camere
90 mp
Etaj 4 / 2
Apartament cu 3 camere decomandat în Republicii
96.500 €
Baia Mare, Republicii
3 camere
81 mp
Parter
Apartament cu 4 camere decomandat, mobilat în Republicii
105.000 €
Baia Mare, Republicii
4 camere
65,3 mp
Etaj 4 / 4
Apartament cu 2 camere decomandat în Vasile Alecsandri
95.000 €
Baia Mare, Vasile Alecsandri
2 camere
58 mp
Etaj 4
Apartament cu 4 camere decomandat în Central
100.000 €
Baia Mare, Central
4 camere
80 mp
Etaj 4 / 4
Apartament cu 2 camere decomandat în Orașul Vechi
98.778 €
Baia Mare, Orașul Vechi
2 camere
59,12 mp
Etaj 1

Abonează-te la newsletter să fii primul care primește cele mai noi recomandări de proprietăți și sfaturi de la experți.