Apartament cu 2 camere, situat in bloc nou, cu parcare, zona Salciei

76.999 €

Exterior Vest, Baia Mare

Nr. camere:
2
Suprafață utilă:
57 mp
Etaj:
2 / 2
An construcție:
2025
Nr. niveluri:
2

Descriere apartament

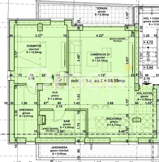
Apartament de 2 camere disponibil pentru vanzare, cu o suprafata utila de 57 mp, situat in zona Salciei. Apartamentul este situat la etajul 2/2, fiind format din living cu bucatarie, dormitor si baie, la care se adauga doua balcoane. Este orientat V. Se afla intr-o zona linistita si bine conectata la mijloacele de transport in comun. Apartamentul se va preda la stadiul de semifinisat! Este inclusa si o parcare exterioara in pretul afisat! Pentru mai multe detalii sau pentru o vizionare nu ezitati sa ne contactati!
Citește mai mult Citește mai puțin
Confort 1 Semidecomandat

Detalii apartament

ID anunț: 2165778 Actualizat în: 17 Aprilie 2026
Nr. camere: 2
Suprafață utilă: 57 mp
Suprafață utilă totală: 57 mp
Compartimentare: Semidecomandat
Confort: 1
Etaj: Etaj 2 / 2
Nr. băi: 1
An construcție: 2025
Regim înălțime: P+2E

Istoric preț

Facilități

Contorizare
Apometre Contor gaz
Utilități
Curent Apă Canalizare Gaze Cablu
Internet
Cablu
Ușă intrare
PVC Metal
Ferestre cu geam termopan
PVC
Amenajare străzi
Iluminat stradal Mijloace de transport în comun Asfaltate

Puncte de interes

Școală
education
International School of Transylvania
Învățământ aprox. 1517 m
education
Facultatea de Inginerie - Centrul Universitar Nord din Baia Mare
Învățământ aprox. 1644 m
education
Grup Scolar Gheorghe Lazar
Învățământ aprox. 1713 m
Recreere
shopping
Metro Cash & Carry
Supermarket/Mall aprox. 1237 m
parks
Teren sportiv
Recreere aprox. 1512 m
shopping
VIVO!
Supermarket/Mall aprox. 1878 m
restaurants
Bourbon Cocktails&Coffee
Restaurante aprox. 1935 m

Proprietăți similare

Apartament cu 2 camere decomandat în Exterior Vest
70.000 €
Baia Mare, Exterior Vest
2 camere
48 mp
Apartament cu 2 camere semidecomandat în Exterior Vest
72.500 €
Baia Mare, Exterior Vest
2 camere
45 mp
Etaj 4
Apartament cu 3 camere decomandat în Exterior Vest
74.500 €
Baia Mare, Exterior Vest
3 camere
68 mp
Apartament cu 2 camere decomandat, mobilat în Exterior Vest
83.900 €
Baia Mare, Exterior Vest
2 camere
43 mp
Etaj 2 / 3
Apartament cu 3 camere decomandat în Exterior Vest
83.000 €
Baia Mare, Exterior Vest
3 camere
60 mp
Etaj 3
Apartament cu 2 camere semidecomandat în Exterior Vest
76.999 €
Baia Mare, Exterior Vest
2 camere
54 mp
Etaj 2
Apartament cu 2 camere decomandat în Exterior Vest
83.900 €
Baia Mare, Exterior Vest
2 camere
48 mp
Etaj 2
Apartament cu 2 camere nedecomandat, mobilat în Orașul Vechi
79.000 €
Baia Mare, Orașul Vechi
2 camere
50,8 mp
Etaj 2
Apartament cu 3 camere decomandat, mobilat în Hotvon
74.500 €
Baia Mare, Hotvon
3 camere
68 mp
Parter

Abonează-te la newsletter să fii primul care primește cele mai noi recomandări de proprietăți și sfaturi de la experți.