Apartamente 2 camere semifinisate ,

82.500 €

Baciu, Judeţul Cluj

Nr. camere:
2
Suprafață utilă:
37 mp
Etaj:
1 / 2
An construcție:
2025
Nr. niveluri:
2

Descriere apartament

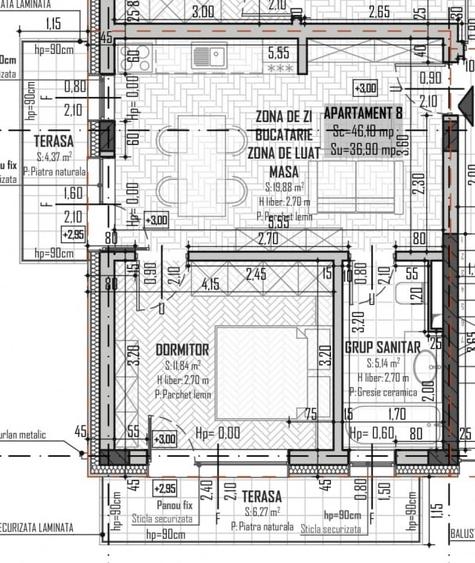
GreenCasa Imobiliare va propune spre vanzare 3 apartamente noi, semifinisat, 2 camere | Baciu strada Cometei Zonă retrasă și liniștită. va prezint un apartament într-un bloc exclusivist, cu doar 12 apartamente, construit din beton armat și cărămidă, cu izolație exterioară de 15 cm. Apartamentele se afla la etajul 1, are o compartimentare modernă cu orientare sudică: living cu bucătărie open-space + balcon, dormitor + balcon cu vedere superba, baie cu ări premium: Centrală termică proprie Încălzire în pardoseală Geamuri termopan cu profil PVC Regim redus de înălțime (D+P+2) intimitate și liniște , 2 Apartamente: preț -82.500 +Tva inclus suprafața 37mp +2 balcoane 6,27mp +4,37mp si 1 apartament preț 92.500 Tva inclus suprafața 40,40mp + balcon 8,91mpParcare subterană disponibilă 8.500 Ideal pentru locuință sau investiție, într-o zonă aerisită, aproape de oraș, dar departe de agitație. ID Extern P141968
Citește mai mult Citește mai puțin
Confort 1 Semidecomandat Centrală proprie Bine întreținut (Bună)

Detalii apartament

ID anunț: 2252147 Actualizat în: 03 Aprilie 2026
Nr. camere: 2
Suprafață utilă: 37 mp
Suprafață utilă totală: 37 mp
Compartimentare: Semidecomandat
Confort: 1
Etaj: Etaj 1 / 2
Nr. băi: 1
An construcție: 2025
Regim înălțime: P+2E

Istoric preț

Facilități

Contorizare
Apometre Contor gaz
Facilități imobil
Interfon
Utilități
Curent Apă Canalizare Gaze
Sistem încălzire
Centrală proprie
Internet
Fibră optică
Ușă intrare
PVC Metal
Stare interior
Stare bună
Izolații termice
Exterior
Ferestre cu geam termopan
PVC
Amenajare străzi
Asfaltate

Puncte de interes

Mijloace transport
transport
Statia Intermediara, Linia 31B
Mijloace transport aprox. 400 m
transport
Napolact
Mijloace transport aprox. 436 m
transport
Statia Napolact, Linia 31, 31B
Mijloace transport aprox. 480 m
transport
Baciu Triaj Hm
Mijloace transport aprox. 497 m
Școală
education
Grăd.Neghiniţăstr. 2
Învățământ aprox. 1177 m
education
Gradinita Baciu
Învățământ aprox. 1470 m
education
Gradinita Neghinita
Învățământ aprox. 1569 m
education
Scoala Gimnaziala Speciala Transilvania
Învățământ aprox. 1690 m
Recreere
restaurants
Regal
Restaurante aprox. 436 m
parks
Parc copii
Recreere aprox. 1185 m
parks
Teren sportiv
Recreere aprox. 1225 m
shopping
Lidl
Supermarket/Mall aprox. 1612 m

Proprietăți similare

Apartament cu 2 camere decomandat în Baciu
78.000 €
Județul Cluj, Baciu
2 camere
55 mp
Etaj 3 / 3
Apartament cu 3 camere semidecomandat în Baciu
89.930 € + TVA
Județul Cluj, Baciu
3 camere
52,9 mp
Etaj 2 / 2
Apartament cu 2 camere semidecomandat în Baciu
82.500 €
Județul Cluj, Baciu
2 camere
37 mp
Etaj 1 / 2
Apartament cu 2 camere decomandat în Baciu
83.900 €
Județul Cluj, Baciu
2 camere
54 mp
Etaj 3 / 3
Apartament în Baciu
86.900 €
Județul Cluj, Baciu
41 mp
Etaj 1
Apartament cu 3 camere semidecomandat în Baciu
89.930 €
Județul Cluj, Baciu
3 camere
52 mp
Etaj 1
Apartament cu 2 camere semidecomandat, mobilat în Baciu
81.000 €
Județul Cluj, Baciu
2 camere
47 mp
Etaj 3
Apartament cu 2 camere semidecomandat în Baciu
82.500 €
Județul Cluj, Baciu
2 camere
37 mp
Etaj 1
Apartament cu 2 camere semidecomandat în Baciu
84.990 € + TVA
Județul Cluj, Baciu
2 camere
48,45 mp
Etaj 1 / 4

Abonează-te la newsletter să fii primul care primește cele mai noi recomandări de proprietăți și sfaturi de la experți.