PROPRIETAR -Orizont-Castanilor-3 cam. dec.-spațios 82mp Monolit -et. intermediar

79.000 €

Orizont, Bacău

Nr. camere:
3
Suprafață utilă:
82 mp
Etaj:
7 / 10
Nr. niveluri:
10

Descriere apartament

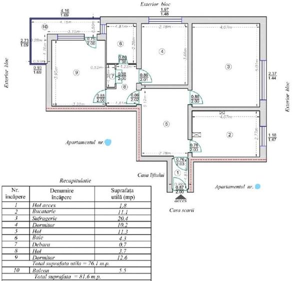
Proprietar, vând apartament 3 camere, modelul mare (81,6 mp), situat în zona Orizont - Piața Sud, pe str. Castanilor nr. 4. Este o locuință curată, luminoasă și spațioasă, ideală pentru o familie care dorește să se mute într-una dintre cele mai solide construcții din Bacău. COMPARTIMENTARE DEOSEBITĂ (81,6 mp conform RELEVEU atașat în galeria foto): • Suprafață totală (inclusiv balcon): 81,6 mp • Suprafață utilă: 76,1 mp • Suprafață construită: 110,68 mp • Bucătărie mare (11,1 mp): Spațioasă, loc de luat masa pentru toată familia. • Hol pătrat imens (11,3 mp): O adevărată cameră în sine, oferă o senzație de spațiu imediat ce intri în casă. Poate fi amenajat ca zonă de zi/birou. • Spații depozitare: include debara. • Balcon generos (5,5 mp): Modelul lung, în formă de L. Este închis, oferind protecție împotriva intemperiilor. LOCAȚIE EXCELENTĂ: • Blocul este situat pe str. Castanilor nr. 4, între Mega Image (Curcanul de Aur) și biserica Sf. Gheorghe. • 2 min. de mers pe jos: Piața Sud, Mega Image, stație autobuz. • La doi pași de unele dintre cele mai bune școli din Bacău: Școala gimnazială nr. 10, Grădinița cu program prelungit nr. 28 și Școala gimnazială nr. 27 George Bacovia. • 10 min. de mers pe jos de Universitatea „Vasile Alecsandri”, Spitalul Județean și Parc. • Locuința este ideală pentru familii, fiind situată într-o zonă liniștită, verde și extrem de civilizată. RENOVARE ȘI DOTĂRI 2025 (Investițiile grele sunt gata): • Pereți și tavane: Decopertați până la placă și refăcuți complet (tencuială, glet, 3 straturi lavabilă albă). • Tâmplărie premium: Termopane noi (2025) Salamander 6 camere, cu 3 garnituri și 3 foi de sticlă (tripan). Pervaze interior și exterior. • Baie: Renovată integral în 2025 (instalații, gresie, faianță și mobilier noi). ARE FEREASTRĂ! • Centrală termică proprie, instalație realizată din țevi groase de cupru, • Ușă metalică la intrare. • În camere a fost păstrat parchetul original din lemn masiv (ideal pentru recondiționare). Acesta este într-o stare bună și reprezintă o bază excelentă pentru reabilitare. • Apartamentul reprezintă o „pânză albă”, fiind pregătit pentru ultimele finisaje (parchet și uși interioare), scutindu-vă de partea grea a renovării. DETALII BLOC: • Structură MONOLIT (1970): Beton armat turnat integral (direct în cofraj, nu din prefabricate), rezistență seismică excepțională și izolare fonică superioară panourilor prefabricate și multor blocuri noi, unde se face adesea economie la materiale. • Expertiză tehnică: Blocul a fost expertizat în anul 2011 și încadrat în clasa RS3 (risc seismic redus). Această certificare oficială confirmă stabilitatea imobilului și permite obținerea oricărui tip de credit bancar (ipotecar sau Noua Casă). • Utilități din construcție: Blocul este prevăzut din proiectare cu hidrofor și bazin de apă propriu, asigurând presiune maximă la apă în permanență, indiferent de consumul din oraș. • Etaj intermediar (7 din 10), oferind o vedere panoramică superbă pe ambele fețe ale blocului. • Lift nou (2022): Marcă OTIS, modern și rapid. • Scară curată și civilizată, cu vecini liniștiți (mulți profesori, medici, ingineri). DETALII VÂNZARE: • Preț: 79.000 €. • Toate actele sunt la zi. • Se acceptă credit ipotecar sau programul "Noua Casă". • Comision 0% (vânzare directă de la proprietar). • Exclus contactarea de către agenții imobiliare. • Vă rog sunați pentru alte detalii și vizionare între orele 08:00 - 20:00.
Citește mai mult Citește mai puțin
Decomandat

Detalii apartament

ID anunț: 234010 Actualizat în: 25 Ianuarie 2026
Nr. camere: 3
Suprafață utilă: 82 mp
Suprafață utilă totală: 82 mp
Compartimentare: Decomandat
Etaj: Etaj 7 / 10
Nr. băi: 1
Regim înălțime: P+10E

Istoric preț

Puncte de interes

Mijloace transport
transport
Statia Narcisa
Mijloace transport aprox. 1315 m
transport
Statia Piata Centrala
Mijloace transport aprox. 1994 m
Școală
education
Scoala Gimnaziala Nr.10
Învățământ aprox. 195 m
education
block B
Învățământ aprox. 464 m
education
Universitatea George Bacovia
Învățământ aprox. 1017 m
education
Scoala Gimnaziala Platon
Învățământ aprox. 1936 m
Recreere
parks
Teren sportiv
Recreere aprox. 211 m
restaurants
Restaurant Iris
Restaurante aprox. 344 m
shopping
Carrefour Market - Central Plaza
Supermarket/Mall aprox. 664 m
shopping
Penny
Supermarket/Mall aprox. 990 m

Proprietăți similare

Apartament cu 3 camere semidecomandat în Orizont
78.000 €
Bacău, Orizont
3 camere
55 mp
Etaj 2
Apartament cu 3 camere decomandat în Orizont
72.000 €
Bacău, Orizont
3 camere
61 mp
Etaj 3
Apartament cu 3 camere decomandat în Orizont
73.000 €
Bacău, Orizont
3 camere
65 mp
Parter
Apartament cu 3 camere decomandat în Orizont
73.000 €
Bacău, Orizont
3 camere
64 mp
Etaj 3
Apartament cu 3 camere semidecomandat în Orizont
80.000 €
Bacău, Orizont
3 camere
56 mp
Etaj 4
Apartament cu 3 camere decomandat, mobilat în Orizont
73.000 €
Bacău, Orizont
3 camere
65 mp
Parter
Apartament cu 3 camere în Orizont
76.500 €
Bacău, Orizont
3 camere
74 mp
Etaj 9 / 10
Apartament cu 3 camere decomandat în Mioriței
79.500 €
Bacău, Mioriței
3 camere
75 mp
Etaj 4 / 4
Apartament cu 3 camere decomandat în Calea Bârladului
85.900 €
Bacău, Calea Bârladului
3 camere
65,59 mp
Parter / 2

Abonează-te la newsletter să fii primul care primește cele mai noi recomandări de proprietăți și sfaturi de la experți.