Apartament ultracentral 144 mp utili cladire istorica, premium

165.600 €

Ultracentral, Arad

Nr. camere:
3
Suprafață utilă:
144 mp
Etaj:
2 / 2
An construcție:
1890
Nr. niveluri:
2

Descriere apartament

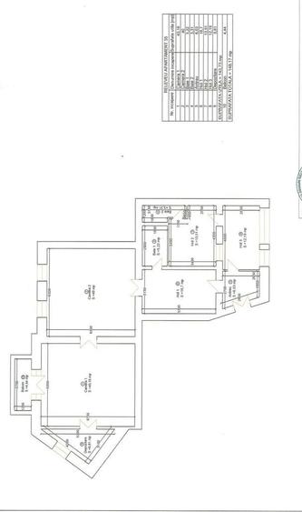
Iti doresti un apartament spatios, ultracentral, intr-o cladire istorica reprezentativa? Aceasta proprietate rara iti ofera combinatia perfecta intre eleganta, locatie premium si potential investitional. Apartamentul are o suprafata utila generoasa de 144 mp (158 mp construiti) si este situat la etajul 1 intr-o cladire istorica (1890), cu arhitectura eclectica deosebita. Compartimentarea semidecomandata include 3 camere, antreu, bucatarie si 2 bai, fiind ideala atat pentru locuire, cat si pentru activitati profesionale. Beneficiaza de camere inalte, luminozitate excelenta si vedere catre zona centrala, oferind un ambient elegant si versatil. Aceasta proprietate se remarca prin pozitionarea ultracentrala si prin farmecul unei cladiri emblematice, fiind potrivita pentru sediu de firma, birou notarial/avocatura sau investitie in regim hotelier (Airbnb, Booking). Spatiul generos si caracterul unic ii ofera un potential ridicat de valorificare. Contacteaz-o pe Ildiko Bodis la pentru mai multe detalii sau pentru a programa o vizionare. O astfel de oportunitate apare rar pe piata!
Citește mai mult Citește mai puțin
Semidecomandat

Detalii apartament

ID anunț: 3979186 Actualizat în: 26 Martie 2026
Nr. camere: 3
Suprafață utilă: 144 mp
Suprafață utilă totală: 144 mp
Compartimentare: Semidecomandat
Etaj: Etaj 2 / 2
An construcție: 1890
Regim înălțime: P+2E

Istoric preț

Puncte de interes

Mijloace transport
transport
Piata Podgoria
Mijloace transport aprox. 882 m
transport
Piata Podgoria
Mijloace transport aprox. 959 m
transport
Piata Podgoria
Mijloace transport aprox. 963 m
transport
Piata Romana
Mijloace transport aprox. 1028 m
Școală
education
Palatul Copiilor
Învățământ aprox. 140 m
education
Universitatea Aurel Vlaicu
Învățământ aprox. 144 m
education
Colegiul Economic
Învățământ aprox. 259 m
education
Colegiul National Elena Ghiba Birta
Învățământ aprox. 305 m
Recreere
restaurants
McDonald's
Restaurante aprox. 70 m
parks
Parcul Mihai Eminescu
Recreere aprox. 252 m
shopping
Ziridava Shopping Center
Supermarket/Mall aprox. 518 m
shopping
Billa
Supermarket/Mall aprox. 535 m

Proprietăți similare

Apartament cu 3 camere în Ultracentral
159.000 €
Arad, Ultracentral
3 camere
146 mp
Etaj 1
Apartament cu 4 camere decomandat, mobilat în Ultracentral
158.300 €
Arad, Ultracentral
4 camere
150 mp
Etaj 2
Apartament cu 3 camere semidecomandat în Ultracentral
150.000 €
Arad, Ultracentral
3 camere
83 mp
Etaj 2
Apartament cu 7 camere semidecomandat, mobilat în Ultracentral
171.900 €
Arad, Ultracentral
7 camere
177 mp
Etaj 1
Apartament cu 3 camere decomandat, mobilat în Ultracentral
180.000 €
Arad, Ultracentral
3 camere
146 mp
Etaj 1
Apartament cu 2 camere semidecomandat, mobilat în Ultracentral
165.000 €
Arad, Ultracentral
2 camere
77 mp
Etaj 2
Apartament cu 2 camere în Ultracentral
150.000 €
Arad, Ultracentral
2 camere
93 mp
Parter
Apartament cu 4 camere decomandat, mobilat în Ultracentral
159.500 €
Arad, Ultracentral
4 camere
136 mp
Etaj 2
Apartament cu 2 camere semidecomandat, mobilat în Exterior Vest
170.000 €
Arad, Exterior Vest
2 camere
124 mp
Etaj 1

Abonează-te la newsletter să fii primul care primește cele mai noi recomandări de proprietăți și sfaturi de la experți.