Apartament 3 cam, Cf 1, decomandat, Vlaicu-Lebada Y-uri

62.500 €

Aurel Vlaicu, Arad

Nr. camere:
3
Suprafață utilă:
90 mp

Descriere apartament

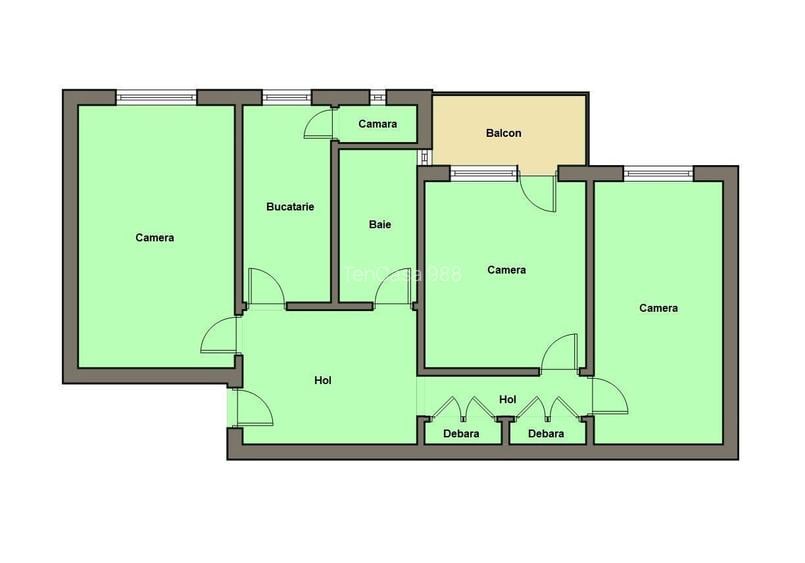
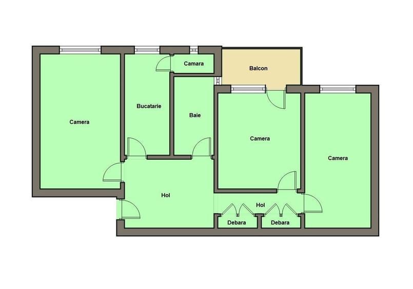
TenCasa propune spre vanzare un apartament cu3 camere situat in Arad cartierul Aurel Vlaicu, zona Lebada la blocurile YImobilul in suprafata de 90 mp, conform CF, grad de confort I, decomandat, grad ridicat de conservare, este compus din: 3 camere, hol intrare, baie, bucatarie, camara alimente, 2 debarale, balcon si este situat la etajul 10 intr-un cu lift cu 10 etaje.Amenajari interioare completepardoseli gresiein holuri, baie si bucatarie, parchet laminat in camere, zugraveli vopsea lavabila, tamplarie interioara usi lemn, usa metalicatamplarie exterioara ferestre PVC cu geamuri termopan, instalatii electrice functionale, instalatii sanitare functionale, baie placata cu gresie, faianta, sistemul de incalzire cu centrala termica proprie pe gaz, instalatii cupru, calorifere aluminiu.Blocul finalizat in anii 85 dispune de lift, interfon, acces usa termopan, fundatie din beton armat, inchideri perimetrale materiale prefabricate, acoperisul tip terasa, finisaj exterior placat cu caramida ornamentala.Zona cu ambient civilizat, atractivitate ridicata, infrastructura completa, iluminat public, acces facil de pe strada, locuri destinate parcarii, spatii verzi, institutii de invatamant, statii pentru mijloace de transport in comun, distante mici fata de unitati complementare ( magazine, sedii de banci). Vecinatati Pizza 5 colturi, Lelia MarketPret: 62.500 euro. Reprezentant exclusiv TenCasa Gabriel LapadatIMPORTANT IN PROCESUL DE ACHIZITIE -Oferim consiliere si asistenta permanenta pana la finalizarea tranzactiei imobiliare. -Va sprijinim in procesul de creditare prin expertii mediatori de credite in baza colaborarilor noastre cu institutiile bancare, de la intocmirea dosarului pana la obtinerea definitiva a creditului. -Abordam impreuna etapele prin care trece un cumparator pana in momentul cand devine proprietar evitand toate greselile pe care cumparatorii tind sa le faca in tranzactiile imobiliare. -Gestionam toate demersurile pana in momentul cand veti deveni proprietar, de la inceputul cautarii (Ghid Cumparator), pana la relatiile si procedurile dintre cumparator-vanzator-banca -notar.
Citește mai mult Citește mai puțin
Confort 1 Decomandat

Detalii apartament

ID anunț: 3608920 Actualizat în: 02 Aprilie 2026
Nr. camere: 3
Suprafață utilă: 90 mp
Suprafață utilă totală: 90 mp
Compartimentare: Decomandat
Confort: 1

Istoric preț

Puncte de interes

Mijloace transport
transport
Autogara CTP
Mijloace transport aprox. 945 m
transport
Piata Podgoria
Mijloace transport aprox. 1004 m
transport
Piata Podgoria
Mijloace transport aprox. 1045 m
transport
Piata Podgoria
Mijloace transport aprox. 1051 m
Școală
education
Palatul Copiilor
Învățământ aprox. 413 m
education
Universitatea Aurel Vlaicu
Învățământ aprox. 449 m
education
Vasile Goldis: Facultatea de Stiinte Juridice
Învățământ aprox. 491 m
education
Facultatea de Stiinte ale Naturii
Învățământ aprox. 539 m
Recreere
restaurants
Ema Del Mar
Restaurante aprox. 211 m
shopping
Alimentara Non Stop
Supermarket/Mall aprox. 531 m
parks
Parcul Mihai Eminescu
Recreere aprox. 565 m
shopping
Ziridava Shopping Center
Supermarket/Mall aprox. 672 m

Proprietăți similare

Apartament cu 2 camere semidecomandat în Aurel Vlaicu
65.000 €
Arad, Aurel Vlaicu
2 camere
45 mp
Parter
Apartament cu 2 camere semidecomandat, mobilat în Aurel Vlaicu
67.000 €
Arad, Aurel Vlaicu
2 camere
43 mp
Etaj 4
Apartament cu 2 camere semidecomandat, mobilat în Aurel Vlaicu
65.000 €
Arad, Aurel Vlaicu
2 camere
40 mp
Parter
Apartament cu 3 camere decomandat în Aurel Vlaicu
68.000 €
Arad, Aurel Vlaicu
3 camere
61 mp
Etaj 7
Apartament cu 2 camere semidecomandat în Aurel Vlaicu
65.000 €
Arad, Aurel Vlaicu
2 camere
45 mp
Etaj 1
Apartament cu 2 camere semidecomandat în Aurel Vlaicu
67.000 €
Arad, Aurel Vlaicu
2 camere
43 mp
Etaj 4
Apartament cu 2 camere semidecomandat în Aurel Vlaicu
64.000 €
Arad, Aurel Vlaicu
2 camere
45 mp
Apartament cu 3 camere în Aurel Vlaicu
66.000 €
Arad, Aurel Vlaicu
3 camere
60 mp
Etaj 4 / 4
Apartament cu 2 camere semidecomandat, mobilat în Aurel Vlaicu
61.800 €
Arad, Aurel Vlaicu
2 camere
45 mp
Etaj 9

Abonează-te la newsletter să fii primul care primește cele mai noi recomandări de proprietăți și sfaturi de la experți.