Apartament cu 3 camere și grădină în Apahida

165.000 €

Apahida, Judeţul Cluj

Nr. camere:
3
Suprafață utilă:
77 mp
Etaj:
Parter / 3
An construcție:
2020
Nr. niveluri:
3

Descriere apartament

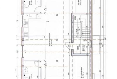
Va prezentam spre vanzare un apartament decomandat, aproape de zona Penny – un colț de liniște și verdeață pentru familia ta. Are in compartimentare camere luminoase si primitoare și bucătărie separată, cu balcon și acces direct în grădină. Apartamentul dispune de 2 locuri de parcare, interfon, ușă metalică, geamuri termopan, aer condiționat și încălzire în pardoseală prin centrală termică Buderus – toate acestea pentru ca tu să te simți în siguranță. Zona este liniștită, aproape de magazine și stații de autobuz, astfel încât confortul urban se îmbină perfect cu viața relaxată de la marginea orașului. Este locul ideal pentru familii cu copii: grădina oferă spațiul perfect pentru joacă și explorare, iar tu poți să te bucuri de fiecare moment petrecut alături de cei dragi. Pentru alte detalii si vizionari, contactati-ne cu incredere !
Citește mai mult Citește mai puțin
Confort 1 Decomandat Mobilat Parțial mobilat Grădină Centrală proprie Zonă rurală

Detalii apartament

ID anunț: 4110872 Actualizat în: 08 Aprilie 2026
Nr. camere: 3
Suprafață utilă: 77 mp
Suprafață utilă totală: 77 mp
Compartimentare: Decomandat
Confort: 1
Etaj: Parter / 3
Nr. băi: 2
An construcție: 2020
Regim înălțime: P+3E

Istoric preț

Facilități

Pereți
Faianță
Podele
Gresie Parchet
Ușă intrare
PVC Parchet Metal
Izolații termice
Exterior
Ferestre cu geam termopan
PVC
Contorizare
Apometre Contor gaz
Bucătărie
Mobilată Utilată
Mobilat
Mobilat Parțial mobilat
Facilități imobil
Grădină
Utilități
Curent Apă Canalizare Gaze Cablu
Sistem încălzire
Centrală proprie
Internet
Cablu
Amenajare străzi
Iluminat stradal Mijloace de transport în comun Asfaltate

Puncte de interes

Mijloace transport
transport
Gara Apahida
Mijloace transport aprox. 1244 m
transport
Dezmir Airfiled
Mijloace transport aprox. 1647 m
transport
EVW Holding
Mijloace transport aprox. 1665 m
transport
Agro Transilvania
Mijloace transport aprox. 1669 m
Școală
education
Gradinita
Învățământ aprox. 572 m
Recreere
restaurants
Victoria
Restaurante aprox. 1338 m
restaurants
Birtul local
Restaurante aprox. 1480 m

Proprietăți similare

Apartament cu 3 camere semidecomandat în Apahida
150.000 €
Județul Cluj, Apahida
3 camere
67,1 mp
Etaj 4
Apartament cu 3 camere decomandat în Apahida
160.000 €
Județul Cluj, Apahida
3 camere
80 mp
Apartament cu 3 camere decomandat în Apahida
151.000 €
Județul Cluj, Apahida
3 camere
65 mp
Etaj 1
Apartament cu 4 camere în Apahida
175.450 €
Județul Cluj, Apahida
4 camere
115 mp
Apartament cu 3 camere decomandat în Apahida
149.000 €
Județul Cluj, Apahida
3 camere
58 mp
Etaj 4
Apartament cu 3 camere decomandat, mobilat în Apahida
152.000 €
Județul Cluj, Apahida
3 camere
65 mp
Etaj 1 / 2
Apartament cu 2 camere decomandat, mobilat în Zorilor
160.000 €
Cluj-Napoca, Zorilor
2 camere
54 mp
Etaj 4
Apartament cu 3 camere semidecomandat în Gheorgheni
175.000 €
Cluj-Napoca, Gheorgheni
3 camere
61,87 mp
Parter / 4
Apartament cu 2 camere decomandat în Gheorgheni
168.000 €
Cluj-Napoca, Gheorgheni
2 camere
53,2 mp
Etaj 4

Abonează-te la newsletter să fii primul care primește cele mai noi recomandări de proprietăți și sfaturi de la experți.