Inchiriere apartament 3 camere – Cortina North, Pipera

1.200 € / lună

Voluntari, Judeţul Ilfov

Nr. camere:
3
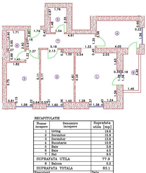
Suprafață utilă:
77,9 mp
Etaj:
10 / 10
An construcție:
2024
Nr. niveluri:
10

Descriere apartament

Descoperă rafinamentul și confortul urban oferite de Cortina North, unul dintre cele mai moderne ansambluri rezidențiale din nordul Bucureștiului, situat pe Bulevardul Pipera 1/VII A, Voluntari. Apartamentul propus spre inchiriere este decomandat, spațios și complet echipat, situat la etajul 10, cu vedere deschisă și finisaje de excepție. Detalii apartament: Suprafață totală: 83 mp Compartimentare: 3 camere decomandate, 2 băi, bucătărie închisă, 1 balcon Etaj: 10 / 10 An construcție: 2024 Regim de înălțime al clădirii: P + 10 etaje Confort: Lux Mobilat și utilat complet – mobilier premium, design modern Dotări și electrocasnice incluse: Aragaz, plită, hotă Frigider, mașină de spălat vase Mașină de spălat rufe + mașină de uscat TV Smart cu diagonală 189 cm Avantaje & facilități: Finisaje de top, materiale de ultimă generație Sistem de climatizare performant Ferestre panoramice și izolare fonică Parcare subterană și pază permanentă Spații comune moderne – lobby elegant, lifturi rapide, sală de fitness, zone verzi Vecinătăți și puncte de interes: Promenada Mall, Aviatiei, Floreasca, Barbu Văcărescu – la 5–10 minute Kaufland Pipera, Pipera Plaza, restaurante și cafenele în apropiere Hub-ul de birouri Pipera – Dimitrie Pompeiu Școli și grădinițe de top: Mark Twain, Questfield, British School, Little London Acces rapid către A3, Șoseaua Pipera-Tunari și Centura Bucureștiului Informații suplimentare: Disponibilitate de inchiriere: imediată Preț: 1200 EUR - Negociabil Inchiriere direct de la persoană fizică (fără TVA)
Citește mai mult Citește mai puțin
Decomandat Mobilat Lux Aer condiționat Calorifere Centrală proprie

Detalii apartament

ID anunț: 1527626 Actualizat în: 10 Martie 2026
Nr. camere: 3
Suprafață utilă: 77,9 mp
Suprafață utilă totală: 77,9 mp
Compartimentare: Decomandat
Etaj: Etaj 10 / 10
Nr. băi: 2
An construcție: 2024
Regim înălțime: P+10E

Istoric preț

Facilități

Pereți
Vopsea lavabilă
Podele
Parchet
Ușă intrare
Parchet Metal PVC
Ferestre cu geam termopan
PVC
Contorizare
Apometre Contor căldură Contor gaz
Bucătărie
Mobilată Utilată
Mobilat
Mobilat Lux
Electrocasnice
Aragaz Frigider Hotă Mașină de spălat Mașină spălat vase TV
Facilități imobil
Interfon Lift
Utilități
Curent Apă Canalizare Gaze Cablu Aragaz / Plită Frigider Mașină de spălat rufe Mașină de spălat vase TV Supraveghere video
Sistem încălzire
Calorifere Centrală proprie
Internet
Cablu
Climatizare
Aer condiționat
Amenajare străzi
Iluminat stradal Mijloace de transport în comun Asfaltate
Servicii imobil
Supraveghere video

Puncte de interes

Mijloace transport
transport
Statia Gelcap, linia 16, 36
Mijloace transport aprox. 719 m
transport
Gelcap
Mijloace transport aprox. 738 m
transport
Rocin
Mijloace transport aprox. 763 m
transport
Rocin
Mijloace transport aprox. 766 m
Școală
education
Gradinita Zece
Învățământ aprox. 1343 m
education
Scoala Nr.3 Voluntari
Învățământ aprox. 1402 m
education
Gradinita Happy Univers
Învățământ aprox. 1534 m
education
Echilibria 1
Învățământ aprox. 1543 m
Recreere
restaurants
Q's inn
Restaurante aprox. 215 m
shopping
Kaufland
Supermarket/Mall aprox. 333 m
parks
spatiu verde
Recreere aprox. 356 m
shopping
Pipera Plaza
Supermarket/Mall aprox. 356 m

Proprietăți similare

Apartament cu 3 camere decomandat, mobilat în Nord
1.100 € / lună
Județul Ilfov, Voluntari
3 camere
74 mp
Etaj 1
Apartament cu 3 camere în Nord
1.190 € / lună
Județul Ilfov, Voluntari
3 camere
62 mp
Etaj 4
Apartament cu 3 camere semidecomandat în Nord
1.100 € / lună
Județul Ilfov, Voluntari
3 camere
76 mp
Etaj 4 / 5
Apartament cu 3 camere semidecomandat, mobilat în Nord
1.200 € / lună
Județul Ilfov, Voluntari
3 camere
130 mp
Parter
Apartament cu 3 camere semidecomandat, mobilat în Sud-Est
1.200 € / lună
Județul Ilfov, Voluntari
3 camere
100 mp
Etaj 3
Apartament cu 3 camere decomandat, mobilat în Central
1.300 € + TVA / lună
Județul Ilfov, Voluntari
3 camere
77 mp
Etaj 8
Apartament cu 3 camere semidecomandat, mobilat în Nord-Est
1.100 € / lună
Județul Ilfov, Voluntari
3 camere
91,5 mp
Etaj 1
Apartament cu 3 camere decomandat în Central
1.150 € / lună
Județul Ilfov, Voluntari
3 camere
71 mp
Parter
Apartament cu 3 camere semidecomandat, mobilat în Voluntari
1.199 € / lună
Județul Ilfov, Voluntari
3 camere
87 mp
Etaj 1

Abonează-te la newsletter să fii primul care primește cele mai noi recomandări de proprietăți și sfaturi de la experți.