Romana | Jules Michelet | Magheru | Renovat 2025 | Centrala Proprie

1.500 € / lună

Romană, Bucureşti

Nr. camere:
5
Suprafață utilă:
125 mp
An construcție:
1928
Nr. niveluri:
5

Descriere apartament

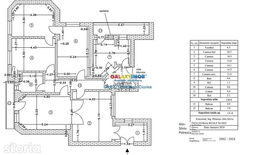
Oferta Exclusiva. Avem cheile proprietatii. Va propunem spre inchiriere un apartament cu 5 camere situat pe strada Jules Michelet la 2 minute de Piata Roamana, renovat complet in 2025, perfect pentru investitie sau locuinta personala, avand un mare potential de inchiriere.Apartamentul este situat la etajul 4 al unui bloc cu 5 etaje, cu o suprafata de 135 mp, toate imbunatatirile, curat, civilizat, lift, interfon, zona centrala.Apartamentul a fost renovat integral in acest an, instalatia electrica si sanitara au fost schimbate integral, peretii au fost decopertati pana la tencuiala, parchet laminat 12mm grosime in dormitoare, hol si living, usi interioare executate la comanda, usa dubla intrare noua, coloane comune schimbate, prize noi, apometrele au fost schimbate, este total contorizat.Toate aspectele au fost luate in considerare pentru o echipare cat mai eficienta, au fost montate prize pentru hota, cuptor electric, masina de spalat si aparate de aer conditionat, apartamentul a fost racordat la instalatiea de gaze si a fost montata o centrala noua, racord 380V, in tot apartamentul a fost turnata o sapa poliuretanica cu celula inchisa de 5 cm si inca 7 cm o sapa din beton usor.Compartimentarea apartamentului include un hol, un living generos format din doua camere cu iesire in balcon, 3 dormitoare, bucatarie cu iesirea in al doilea balcon, doua grupuri sanitare, unul cu dus unu cu cada, in fiecare camera este instalat cate un aparat de aer conditionat.APARTAMENTUL NU A FOST LOCUIT DUPA RENOVARE, TOTUL ESTE NOU. Bucataria este complet mobilata mobilierul este Mobexpert, este complet utilata, plita, cuptor, hota, chiuveta si centrala proprie.Datorita dimensiunilor si a compartimentarii, proprietatea este pretabila pentru locuinta, activitati de birouri, studiouri de film, scoli de dans, birou de avocatura, executori, birou de consultanta. In imediata apropiere a locuintei se gasesc supermarket-uri, magazine diverse, restaurante, farmacii, institutii bancare, scoala, gradinita.Acces metrou statia Piata Romana 2 minute.Pretul de inchiriere este de 1500 euro luna.Conditii de inchiriere 1 luna chirie + 1 luna cerere se poate mobila, pretul fiind in acest caz 2000 euro luna.Comision standard, 50% din prima luna de ratati ocazia de a locui intr-un spatiu modern, elegant si bine conectat! Contactati-ne pentru a programa o vizionare! Informatii eficienta energetica: Clasa energetica: Consumul de energie primara: Indicele de emisii echivalent CO2: Consum de energie din surse regenerabile:
Citește mai mult Citește mai puțin
Nemobilat Aer condiționat Centrală proprie Bine întreținut (Bună)

Detalii apartament

ID anunț: 2770668 Actualizat în: 01 Aprilie 2026
Nr. camere: 5
Suprafață utilă: 125 mp
Suprafață utilă totală: 125 mp
An construcție: 1928
Regim înălțime: P+5E

Istoric preț

Facilități

Pereți
Faianță Vopsea lavabilă
Podele
Parchet Gresie
Ușă intrare
Lemn Parchet
Stare interior
Stare bună
Contorizare
Contor gaz
Bucătărie
Mobilată
Mobilat
Nemobilat
Electrocasnice
Aragaz Hotă Frigider
Sistem încălzire
Centrală proprie
Internet
Cablu Fibră optică Wireless
Climatizare
Aer condiționat

Puncte de interes

Mijloace transport
transport
Piata Lahovari
Mijloace transport aprox. 170 m
transport
Statia Metrou Piata Romana(M2)Metrorex
Mijloace transport aprox. 252 m
transport
Metrorex. Staţia Piaţa Romană (M2)(1988)
Mijloace transport aprox. 288 m
transport
Piata Romana (M2)
Mijloace transport aprox. 288 m
Școală
education
Rectoratul UMF "Carol Davila"
Învățământ aprox. 229 m
education
Lexis scoli de limbi straine
Învățământ aprox. 241 m
education
ASLS (en)
Învățământ aprox. 255 m
education
Colegiul Economic Virgil Madgearu
Învățământ aprox. 258 m
Recreere
parks
Small park (en)
Recreere aprox. 20 m
shopping
Bacania Coco
Supermarket/Mall aprox. 26 m
restaurants
Piua Book Bar
Restaurante aprox. 29 m
shopping
Mega Image Magheru
Supermarket/Mall aprox. 262 m

Proprietăți similare

Apartament cu 5 camere în Romană
1.600 € / lună
București, Romană
5 camere
135 mp
Etaj 1
Apartament cu 4 camere decomandat, mobilat în Romană
1.500 € / lună
București, Romană
4 camere
93 mp
Etaj 4
Apartament cu 3 camere circular în Romană
1.450 € / lună
București, Romană
3 camere
82 mp
Parter
Apartament cu 4 camere decomandat, mobilat în P-ța Victoriei
1.600 € / lună
București, P-ța Victoriei
4 camere
174 mp
Etaj 3 / 5
Apartament cu 3 camere decomandat în Central
1.500 € + TVA / lună
București, Central
3 camere
78 mp
Etaj 2
Apartament cu 3 camere semidecomandat, mobilat în Calea Victoriei
1.400 € / lună
București, Calea Victoriei
3 camere
77 mp
Etaj 3 / 6
Apartament cu 3 camere decomandat, mobilat în P-ța Victoriei
1.500 € + TVA / lună
București, P-ța Victoriei
3 camere
100 mp
Etaj 1
Apartament cu 3 camere semidecomandat în Ultracentral
1.500 € / lună
București, Ultracentral
3 camere
97,17 mp
Etaj 2 / 2
Apartament cu 3 camere decomandat, mobilat în Universitate
1.350 € / lună
București, Universitate
3 camere
74 mp
Etaj 6 / 8

Abonează-te la newsletter să fii primul care primește cele mai noi recomandări de proprietăți și sfaturi de la experți.