În acest moment, nu se primesc cereri pentru această proprietate. Vă sugerăm să verificați alte oferte similare disponibile.
Vezi anunțuri
1 lună în urmă
Braytim-Timisoara | 2 camere | Decomandat | Loc de parcare | Comision Zero
400 €
/ lună
Braytim, Timişoara
Descriere apartament
Sesizează o problemă
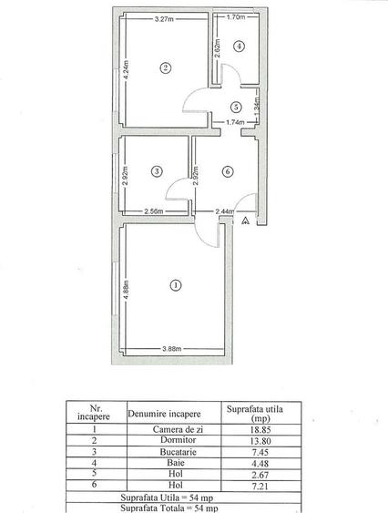
Apartament cu 2 camere, complet decomandat, situat la parterul unui imobil cu regim redus de inal?ime, pe o strada inchisa din zona Braytim ideal pentru lini?te ?i siguran?a. Suprafa?a utila: 54,46 mp Etaj: parter Regim cladire: P+2E+M An construc?ie: 2016 Structura: beton, zidarie caramida Porotherm Compartimentare: hol, living, dormitor, bucatarie inchisa, baie Dotari ?i finisaje: centrala termica proprie, aer condi?ionat, u?a metalica, u?i Porta Doors, parchet ?i gresie, rulouri exterioare ?i plase de insecte la toate ferestrele, orientare nord (apartament racoros vara) Mobilare ?i electrocasnice: bucatarie inchisa complet utilata, ma?ina de spalat rufe, ma?ina de uscat rufe, ma?ina de spalat vase, TV smart (diagonala 138 cm), canapea modulara, loc de birou sau masa de dining Parcare: loc de parcare propriu, inscris in CF, in curtea privata a imobilului Avantaje zona: strada cu trafic redus, acces pietonal rapid (aprox. 5 minute) catre Lidl, Kaufland, Penny, Profi, Calea Martirilor, mijloace de transport in comun, Parcul Padurice; gradini?e private ?i de stat in zona; Spitalul Jude?ean la aproximativ 10 minute de mers pe jos Disponibil imediat Condi?ii: fara animale de companie Pre?: 400 euro/luna + garan?ie ID: CP2859289 Contacta?i ImoWest Imobiliare pentru detalii ?i programare vizionare. ID anun? : 1769382360
Citește mai mult
Citește mai puțin
Confort 1
Decomandat
Parțial mobilat
Aer condiționat
Calorifere
Centrală proprie
1 Parcare
Bine întreținut (Bună)
Detalii apartament
ID anunț: 3279236
Actualizat în: 17 Martie 2026
Nr. camere:
2
Suprafață utilă:
54 mp
Suprafață utilă totală:
54 mp
Compartimentare:
Decomandat
Confort:
1
Etaj:
Parter / 3
Nr. băi:
1
An construcție:
2016
Regim înălțime:
P+3E
Nr. locuri parcare:
1
Istoric preț
Facilități
Pereți
Vopsea lavabilă
Podele
Gresie
Rulouri/Obloane
Aluminiu
PVC
Ușă intrare
Metal
PVC
Stare interior
Stare bună
Izolații termice
Exterior
Ferestre cu geam termopan
Aluminiu
PVC
Contorizare
Apometre
Bucătărie
Mobilată
Mobilat
Parțial mobilat
Electrocasnice
Aragaz
Utilități
Apă
Sistem încălzire
Calorifere
Centrală proprie
Internet
Cablu
Climatizare
Aer condiționat
Amenajare străzi
Asfaltate
Abonează-te la newsletter să fii primul care primește cele mai noi recomandări de proprietăți și sfaturi de la experți.
Căutări similare
- Apartamente de închiriat în Braytim
- Apartamente de închiriat în Timișoara
- Apartamente de închiriat în Central
- Apartamente de închiriat în Aradului
- Apartamente de închiriat în Torontalului
- Apartamente de închiriat în Lipovei
- Apartamente de închiriat în Complex Studențesc
- Apartamente de închiriat în Șagului
- Apartamente de închiriat în Girocului
- Apartamente de închiriat în Soarelui
- Apartamente de închiriat în Circumvalațiunii
- Apartamente de închiriat în Take Ionescu