Apartament in Vila P+1, Eminescu - Mosilor - 110 mp. curte + parcare + nemobilat

1.099 € / lună

Moşilor, Bucureşti

Nr. camere:
4
Suprafață utilă:
110 mp
Etaj:
1

Descriere apartament

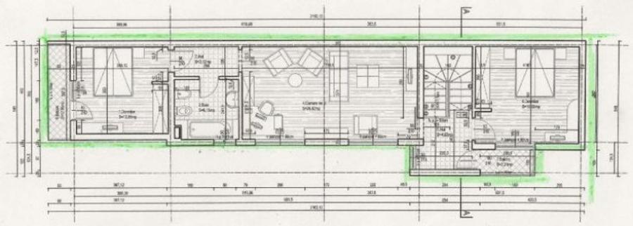
🔹 Apartament in Vila P+1, Zona Eminescu - Mosilor – Foisorul de Foc 110 mp. utili + curte verde | Constructie noua | Doar pentru firme 📍 Locatie excelenta: Mosilor – Eminescu, la 3–5 minute de toate mijloacele de transport (Metrou Obor, STB: 21, 66, 79, 86, 97, 135). Acces facil catre centrul orasului. 🏢 Detalii proprietate: Suprafata utila: 110 mp Curte proprie: 100 mp. – zona verde amenajata Constructie noua – an 2012 Regim inaltime: Parter + Mansarda Finisaje de calitate superioara 4 camere: living generos de 30 mp. + 3 camere 2 bai, 2 balcoane, scara interioara Parcare in curte (acces limitat – pentru o masina), loc in fata portii ✅ Dotari: Centrala termica proprie, Geamuri termopan, Gresie, parchet Retele functionale: apa, gaz, electric, TV, internet, telefonie Proprietatea este zugravita si renovata recent Spatiu luminos, compartimentare eficienta: Parter - o camera, o baie, debara Etaj 1 - o camera decomandata, o camera dubla (30mp.) + o camera, o baie, 2 balcoane 🔒 Alte informatii importante: Nu se inchiriaza ca locuinta privata Se accepta doar firme Proprietatea se afla intr-o vila cu 2 apartamente separate Se doreste activitate linistita, fara trafic intens ❌ NU se accepta: Horeca, Activitati video / studio video, After school, Notariat cu public constant 🏢 Ideal pentru: Birouri / sedii firme Clinici medicale, psihologie, terapie Studio de dans, arte, cursuri private Showroom, beauty salon, agentii de turism sau imobiliare ONG, partide, studio inregistrari Activitati educationale sau creative Saloane, pilates, asigurari, organizare evenimente 💰 Pret 1.099 Euro | Inchiriere pe termen lung 📍 Zona ultracentrala, cu vizibilitate si potential excelent 📞 Contact direct pentru vizionare: Maria
Citește mai mult Citește mai puțin
Decomandat

Detalii apartament

ID anunț: Actualizat în: 09 Februarie 2026
Nr. camere: 4
Suprafață utilă: 110 mp
Suprafață utilă totală: 110 mp
Compartimentare: Decomandat
Etaj: Etaj 1

Istoric preț

Puncte de interes

Mijloace transport
transport
Gara Chiajna
Mijloace transport aprox. 1085 m
Școală
education
Rudeni School (en)
Învățământ aprox. 328 m
education
Scoala "ALEXANDRU ODOBESCU" Chiajna (en)
Învățământ aprox. 1915 m
education
Cladirea scolii nr 1 (en)
Învățământ aprox. 1929 m
Recreere
parks
Stadionul Concordia Chiajna
Recreere aprox. 1360 m
parks
Parc
Recreere aprox. 1486 m

Proprietăți similare

Apartament cu 4 camere în Moșilor
1.150 € / lună
București, Moșilor
4 camere
106 mp
Apartament cu 4 camere decomandat în Moșilor
1.099 € / lună
București, Moșilor
4 camere
110 mp
Etaj 1
Apartament cu 4 camere decomandat în Moșilor
1.100 € / lună
București, Moșilor
4 camere
104 mp
Parter
Apartament cu 4 camere în Moșilor
1.100 € / lună
București, Moșilor
4 camere
110 mp
Parter
Apartament cu 4 camere decomandat în Moșilor
1.100 € / lună
București, Moșilor
4 camere
104 mp
Parter
Apartament cu 2 camere semidecomandat, mobilat în Barbu Văcărescu
1.100 € / lună
București, Barbu Văcărescu
2 camere
56 mp
Etaj 4 / 10
Apartament cu 2 camere, mobilat în Barbu Văcărescu
1.100 € + TVA / lună
București, Barbu Văcărescu
2 camere
68,9 mp
Etaj 9
Apartament cu 2 camere semidecomandat, mobilat în Barbu Văcărescu
1.000 € / lună
București, Barbu Văcărescu
2 camere
55 mp
Etaj 5
Apartament cu 2 camere decomandat, mobilat în Barbu Văcărescu
1.200 € / lună
București, Barbu Văcărescu
2 camere
65 mp
Etaj 4 / 20

Abonează-te la newsletter să fii primul care primește cele mai noi recomandări de proprietăți și sfaturi de la experți.