Penthouse cu 3 camere 80mp,2 terase,boxa, Grigorescu, Zona TVR

1.100 € / lună

Grigorescu, Cluj-Napoca

Nr. camere:
3
Suprafață utilă:
80 mp
Etaj:
2 / 2
An construcție:
2018
Nr. niveluri:
2

Descriere apartament

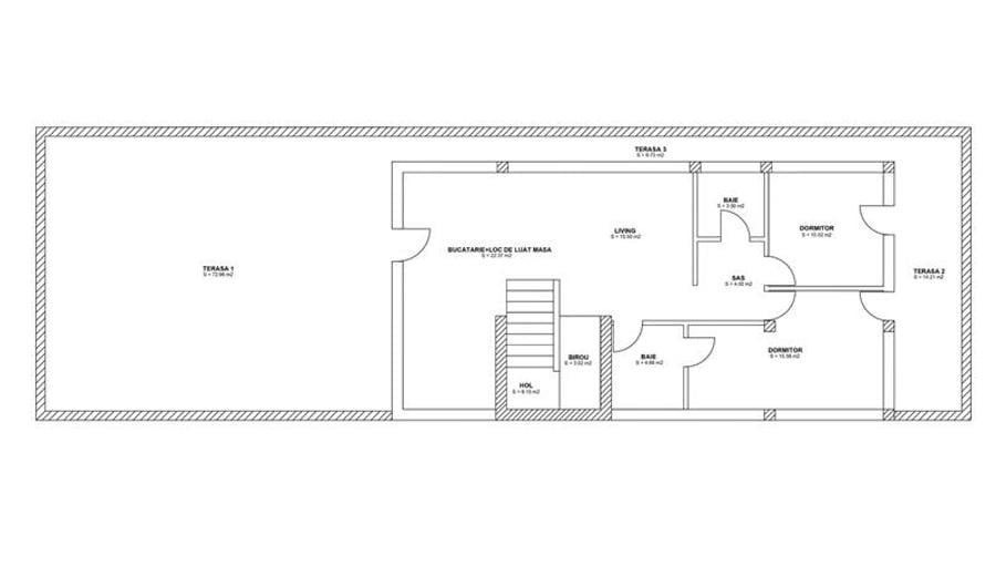
Klar Imobiliare va propune spre inchiriere un penthouse de 3 camere, confort 1, situat intr-o locatie excelenta din cartierul Grigorescu, zona TVR. PROFILUL CHIRIASULUI IDEAL: => Aceasta proprietate se adreseaza in special familiilor care cauta siguranta si un spatiu de viata premium, sau tinerilor profesionisti care doresc o oaza de liniste cu spatii exterioare generoase. Este locuinta ideala pentru cei care apreciaza intimitatea, lumina naturala abundenta, finisajele de calitate superioara si proximitatea fata de natura, fara a renunta la confortul urban. LOCALIZARE SI ACCESIBILITATE: Proprietatea este pozitionata strategic in capatul cartierului Grigorescu, oferind acces rapid atat catre facilitatile urbane, cat si catre zonele verzi majore: => Transport: Acces facil la statiile de autobuz din zona Donath pentru legaturi directe cu centrul orasului. => Educatie: In proximitatea scolilor si gradinitelor din cartierul Grigorescu. => Timp liber: La cateva minute distanta de Padurea Hoia pentru iubitorii de drumetii sau ciclism, dar si aproape de faleza Somesului si complexul Sun Garden (Baciului). => Facilitati: Supermarket-uri, farmacii si unitati bancare in zona, cu acces extrem de rapid cu masina catre polul de business Tetarom I. DETALII IMOBIL SI COMPARTIMENTARE: Apartamentul este situat la etajul 2 din 2, intr-un imobil tip vila finalizat in anul 2018, dotat cu interfon. Blocul este izolat termic, asigurand un consum redus de energie, iar proprietatea include si o boxa pentru depozitare. => Orientare Geografica: Mixta - beneficiaza de lumina naturala pe tot parcursul zilei datorita suprafetelor vitrate foarte mari (geamuri de sus pana jos). => Cu o suprafata utila de 80 mp, locuinta este de tip semidecomandat si eficient compartimentata, accentul cazand pe fluiditatea spatiului: Living open space, extrem de luminos, cu zona de relaxare confortabila si acces direct pe terasa principala; Bucatarie open space integrata armonios cu un loc de luat masa generos (aprox. 22 mp in total); 2 Dormitoare: dormitorul matrimonial cu pat dublu, iar cel de-al doilea configurat ideal pentru copii tineret, dotat cu pat etajat si mobilier ingenios; Un spatiu dedicat pentru birou, hol si sas pentru o compartimentare fluida a zonei de noapte; 2 Bai moderne si complet utilate; Terase spectaculoase: Punctul forte al apartamentului il reprezinta suprafata exterioara uriasa. Dispune de o terasa principala panoramica de peste 72 mp, ideala pentru relaxare si socializare in aer liber, si alte doua terase secundare de 14 mp, respectiv 9 mp. DOTARI SI FINISAJE: Locuinta se inchiriaza complet mobilata si utilata la standarde inalte, punand la dispozitie: => Confort termic: Centrala termica proprie cu incalzire in pardoseala, sistem de aer conditionat si tamplarie cu geamuri termopan mari. => Electrocasnice: Masina de spalat haine, masina de spalat vase, frigider, plita aragaz, cuptor electric, cuptor cu microunde, hota, TV. => Mobilier: Realizat la comanda, modern si ergonomic, incluzand dressinguri spatioase cu oglinzi (cu design tip fagure), canapea L-shape si mobilier de exterior pe terasa. CONDITII JURIDICE, FINANCIARE SI POLITICI: => Garantia perceputa: Se solicita o garantie echivalenta cu contravaloarea a 1 luna de chirie. => Parcare: Proprietatea dispune de 2 locuri de parcare exterioare, incluse in pretul chiriei. => Animale de companie: Se pot discuta punctual, in functie de politica proprietarului. => DISPONIBIL DIN 15 APRILIE 2026. ID intern: 11570 Va invitam sa programati o vizionare pentru a descoperi potentialul acestei proprietati! Klar Imobiliare Cluj - Real Estate pe limba ta
Citește mai mult Citește mai puțin
Confort 1 Semidecomandat Mobilat Aer condiționat Centrală proprie

Detalii apartament

ID anunț: 3840875 Actualizat în: 17 Martie 2026
Nr. camere: 3
Suprafață utilă: 80 mp
Suprafață utilă totală: 80 mp
Compartimentare: Semidecomandat
Confort: 1
Etaj: Etaj 2 / 2
Nr. băi: 2
An construcție: 2018
Regim înălțime: P+2E

Istoric preț

Facilități

Sistem încălzire
Centrală proprie
Climatizare
Aer condiționat
Bucătărie
Utilată Mobilată
Mobilat
Mobilat
Electrocasnice
Aragaz Hotă Frigider Cuptor microunde TV Mașină de spălat
Facilități imobil
Interfon

Puncte de interes

Mijloace transport
transport
Miraslau
Mijloace transport aprox. 128 m
transport
Fantanele Bus Station
Mijloace transport aprox. 148 m
transport
Statia Miraslau, Linia CORA
Mijloace transport aprox. 195 m
transport
Fantanele
Mijloace transport aprox. 246 m
Școală
education
Grăd.Mica Sirenă1
Învățământ aprox. 113 m
education
Institutul de cercetari in chimie Raluca Ripan
Învățământ aprox. 136 m
education
FasTracKids Cluj-Napoca
Învățământ aprox. 166 m
education
Gradinita Licurici str. 1
Învățământ aprox. 409 m
Recreere
restaurants
Infinity Games
Restaurante aprox. 31 m
parks
Parc
Recreere aprox. 132 m
shopping
Magazin Profi Grigorescu
Supermarket/Mall aprox. 193 m
shopping
Profi
Supermarket/Mall aprox. 193 m

Proprietăți similare

Apartament cu 4 camere decomandat, mobilat în Grigorescu
1.000 € / lună
Cluj-Napoca, Grigorescu
4 camere
77 mp
Parter
Apartament cu 4 camere semidecomandat, mobilat în Grigorescu
1.099 € / lună
Cluj-Napoca, Grigorescu
4 camere
175 mp
250 mp teren
Apartament cu 4 camere decomandat, mobilat în Grigorescu
1.000 € / lună
Cluj-Napoca, Grigorescu
4 camere
175 mp
Etaj 1
Apartament cu 3 camere în Grigorescu
1.100 € / lună
Cluj-Napoca, Grigorescu
3 camere
140 mp
Parter / 2
Apartament cu 2 camere semidecomandat, mobilat în Central
1.200 € / lună
Cluj-Napoca, Central
2 camere
63 mp
Etaj 5
Apartament cu 4 camere semidecomandat, mobilat în Mănăștur
1.000 € / lună
Cluj-Napoca, Mănăștur
4 camere
110 mp
Etaj 2
Apartament cu 3 camere semidecomandat, mobilat în Între Lacuri
1.200 € / lună
Cluj-Napoca, Între Lacuri
3 camere
60 mp
Etaj 5 / 5
Apartament cu 4 camere semidecomandat, mobilat în Europa
1.000 € / lună
Cluj-Napoca, Europa
4 camere
85 mp
Etaj 2 / 3
Apartament cu 3 camere semidecomandat în Între Lacuri
1.200 € / lună
Cluj-Napoca, Între Lacuri
3 camere
72 mp
Etaj 9 / 10

Abonează-te la newsletter să fii primul care primește cele mai noi recomandări de proprietăți și sfaturi de la experți.