LIVE! Distinctiv,elegant, areal preferential, loc parcare, K

600 € / lună

Tractorul, Braşov

Nr. camere:
2
Suprafață utilă:
41 mp
Etaj:
8 / 8
An construcție:
2020
Nr. niveluri:
8

Descriere apartament

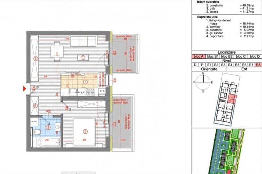
Comision chirias: 50% TVA, din contravaloarea unei chirii lunare, o singura data. ASCENDENT IMOBILIARE este onorata sa va prezinte spre inchiriere o eleganta rezidenta, tip studio, pozitionata in apreciatul areal Kasper, Coresi, Tractorul Brasov. Va invitam sa experimentati o vizionare initiala, din locatia unde va aflati, chiar acum, prin accesarea turului virtual: Tur virtual tridimensional: https:// /show/?m=jE2TpsQyyE3 Distributie: Hol de intrare: asigura accesul catre toate camerele studioului. Living: include o terasa accesibila direct din living, perfecta pentru relaxare. Dormitor: spatios, cu acces la un balcon/terasa, ideal pentru momente de liniste. Baie: moderna si complet echipata. Electrocasnicele sunt integrate in mobilier, oferind o estetica placuta si functionalitate sporita bucatariei. Dotarile includ un frigider, un congelator separat, un cuptor cu microunde, un cuptor electric si o plita electrica. Dispune de aer conditionat pentru un confort optim. Apartamentul include si o boxa de depozitare situata la subsolul blocului. Locul de parcare aferent, cu o suprafata de 18 mp, este cel mai mare din zona, oferind suficient spatiu pentru vehiculul dumneavoastra. Locativul se evidentiaza prin pozitionarea excelenta in cartier, situata pe aleea pietonala Coresi, cu acces facil la principalele puncte de interes, Excelenta infrastuctura locala completeasa speciala oferta. Consilier dedicat alesei oferte: domnul Ionel Manailescu, Telefon/ WhatsApp: Detalii si fotografii suplimentare, precum si alte variante similiare exclusive: Confort: 1 Tip imobil: Bloc de apartamente Numar Bai: 1 Posibilitate parcare: Da Nr. locuri parcare: 1
Citește mai mult Citește mai puțin
Decomandat Lux Mobilat Centrală proprie

Detalii apartament

ID anunț: 1691437 Actualizat în: 24 Februarie 2026
Nr. camere: 2
Suprafață utilă: 41 mp
Suprafață utilă totală: 41 mp
Compartimentare: Decomandat
Etaj: Etaj 8 / 8
An construcție: 2020
Regim înălțime: P+8E

Istoric preț

Facilități

Pereți
Faianță Vopsea lavabilă
Podele
Parchet Gresie
Rulouri/Obloane
Lemn PVC
Ușă intrare
PVC Lemn Parchet
Uși interior
Lemn PVC
Ferestre cu geam termopan
PVC Lemn
Sistem încălzire
Centrală proprie
Internet
Fibră optică
Bucătărie
Utilată Mobilată
Dotări
Lift
Mobilat
Lux Mobilat
Electrocasnice
Aragaz Hotă Frigider Cuptor microunde TV Mașină de spălat
Facilități imobil
Lift Videointerfon
Amenajare străzi
Asfaltate

Puncte de interes

Mijloace transport
transport
Statia "sanitas", linia 1,4,34,37,2,31,17,36,6,52,50,50barat,16,51
Mijloace transport aprox. 84 m
transport
Sanitas
Mijloace transport aprox. 87 m
transport
Statia "Iuliu Maniu", linia 12,22
Mijloace transport aprox. 135 m
transport
Statia "Spitalul Marzescu", linia 12,22
Mijloace transport aprox. 265 m
Școală
education
Scoala generala nr.5
Învățământ aprox. 14 m
education
Scoala Generala Nr. 5
Învățământ aprox. 16 m
education
Gradinita cu program prelungit Nr. 8
Învățământ aprox. 129 m
education
Facultatea de Matematica si Informatica. Corp "P"
Învățământ aprox. 140 m
Recreere
restaurants
Pizzeria della Nonna
Restaurante aprox. 37 m
parks
Parc
Recreere aprox. 145 m
shopping
API Biomania
Supermarket/Mall aprox. 210 m
shopping
Carrefour Market
Supermarket/Mall aprox. 513 m

Proprietăți similare

Apartament cu 2 camere decomandat, mobilat în Tractorul
600 € / lună
Brașov, Tractorul
2 camere
52 mp
Etaj 5
Apartament cu 2 camere decomandat, mobilat în Tractorul
600 € / lună
Brașov, Tractorul
2 camere
54 mp
Parter
Apartament cu 3 camere decomandat în Tractorul
650 € / lună
Brașov, Tractorul
3 camere
76 mp
Etaj 4
Apartament cu 2 camere decomandat, mobilat în Tractorul
600 € / lună
Brașov, Tractorul
2 camere
60 mp
Etaj 5
Apartament cu 3 camere decomandat, mobilat în Tractorul
650 € / lună
Brașov, Tractorul
3 camere
66 mp
Parter
Apartament cu 2 camere decomandat în Tractorul
600 € / lună
Brașov, Tractorul
2 camere
54 mp
Parter
Apartament cu 3 camere, mobilat în Tractorul
650 € / lună
Brașov, Tractorul
3 camere
73 mp
Parter
Apartament cu 3 camere decomandat în Tractorul
650 € / lună
Brașov, Tractorul
3 camere
76 mp
Etaj 4
Apartament cu 2 camere decomandat, mobilat în Tractorul
600 € / lună
Brașov, Tractorul
2 camere
52 mp
Etaj 6

Abonează-te la newsletter să fii primul care primește cele mai noi recomandări de proprietăți și sfaturi de la experți.